ΜΕΛΕΤΗ-ΑΠΟΤΥΠΩΣΗ-ΦΩΤΟΓΡΑΦΙΣΗ
Ι.Π.ΠΑΡΑΦΕΣΤΑ
1996 2018
ΠΕΡΙΕΧΟΜΕΝΑ
1. ΓΕΝΙΚΑ ΣΤΟΙΧΕΙΑ- ΘΕΣΗ ΤΩΝ ΟΙΚΙΣΜΩΝ "ΒΑΛΕΟΝΤΑΤΕΣ" ΚΑΙ ΜΑΡΓΑΡΙΤΕΣ
2. ΕΛΕΥΣΗ
ΜΕΤΑΝΑΣΤΩΝ ΚΑΤΑ ΤΟΝ 18ο ΑΙΩΝΑ
3. ΙΔΡΥΣΗ ΤΩΝ
ΣΥΝΟΙΚΙΣΜΩΝ ΒΑΛΕΟΝΤΑΤΕΣ ΚΑΙ ΜΑΡΓΑΡΙΤΕΣ
3.1 - ΤΑ "ΧΙΩΤΙΚΑ" -
ΕΓΚΑΤΑΣΤΑΣΗ ΣΤΗΝ ΠΕΡΙΟΧΗ
4. ΣΥΝΟΠΤΙΚΑ ΟΙ ΙΣΤΟΡΙΚΕΣ ΣΥΓΚΥΡΙΕΣ ΚΑΤΑ ΤΗ ΔΙΑΡΚΕΙΑ
ΤΗΣ ΟΙΚΗΣΗΣ ΤΩΝ ΕΞΗ ΜΑΧΑΛΑΔΩΝ
4.1 - ΕΝΕΤΟΙ ΚΑΙ ΠΕΙΡΑΤΙΑ ΣΤΟ ΑΙΓΑΙΟ
ΚΑΤΑ ΤΟΝ 18ο-19ο ΑΙΩΝΑ
4.2 - ΤΟ ΚΙΝΗΜΑ ΤΩΝ ΚΑΡΜΑΝΙΟΛΩΝ
4.3 - Η ΣΑΜΙΑΚΗ ΕΠΑΝΑΣΤΑΣΗ ΤΟΥ 1821
4.4 - Η ΜΕΤΑΝΑΣΤΕΥΣΗ ΤΩΝ ΣΑΜΙΩΝ
4.3 - Η ΣΑΜΙΑΚΗ ΕΠΑΝΑΣΤΑΣΗ ΤΟΥ 1821
4.4 - Η ΜΕΤΑΝΑΣΤΕΥΣΗ ΤΩΝ ΣΑΜΙΩΝ
4.5.- ΠΕΡΙΟΔΟΣ ΗΓΕΜΟΝΙΑΣ (1824-1912)
5. ΣΥΝΟΠΤΙΚΑ ΟΙ ΟΙΚΟΝΟΜΙΚΕΣ ΣΥΓΚΥΡΙΕΣ - ΕΜΠΟΡΙΟ ΚΑΤΑ
ΤΟΝ 18ο-19ο ΑΙΩΝΑ
6. ΕΓΚΑΤΑΛΕΙΨΗ ΤΩΝ ΔΥΟ ΟΙΚΙΣΜΩΝ ΣΤΑ ΤΕΛΗ ΤΟΥ 19ου ΚΑΙ ΣΤΙΣ
ΑΡΧΕΣ ΤΟΥ 20ου ΑΙΩΝΑ
7. ΡΥΜΟΤΟΜΙΑ-ΑΡΧΙΤΕΚΤΟΝΙΚΗ ΣΤΙΣ ΒΑΛΕΟΝΤΑΤΕΣ ΚΑΙ ΜΑΡΓΑΡΙΤΕΣ7.1 - Η ΑΡΧΙΤΕΚΤΟΝΙΚΗ ΚΑΙ Η ΟΙΚΟΔΟΜΙΚΗ ΠΑΡΆΔΟΣΗ ΤΗΣ ΜΕΤΑΒΥΖΑΝΤΙΝΗΣ ΠΕΡΙΟΔΟΥ ΣΤΗΝ ΤΟΥΡΚΟΚΡΑΤΟΥΜΕΝΗ ΣΑΜΟ
7.2.
- OI ΔΥΟ ΟΙΚΙΣΜΟΙ
7.2.1 --ΒΑΛΕΟΝΤΑΤΕΣ: Η ΓΕΙΤΟΝΙΑ ΤΗΣ ΑΝΑΤΟΛΙΚΗΣ
ΟΧΘΗΣ
7.2.2 - ΒΑΛΕΟΝΤΑΤΕΣ: Η ΓΕΙΤΟΝΙΑ ΤΗΣ ΔΥΤΙΚΗΣ
ΟΧΘΗΣ
8. ΟΙ ΔΥΟ ΝΑΟΙ ΤΟΥ ΑΓΙΟΥ ΓΕΩΡΓΙΟΥ
ΜΑΡΓΑΡΙΤΩΝ ΚΑΙ ΤΗΣ ΑΓΙΑΣ ΤΡΙΑΔΟΣ ΒΑΛΕΟΝΤΑΤΩΝ
8.1 - Ο ΝΑΟΣ ΤΟΥ ΑΓ. ΓΕΩΡΓΙΟΥ ΜΑΡΓΑΡΙΤΙΔΩΝ
-
8.1.1 - ΑΡΧΙΤΕΚΤΟΝΙΚΗ ΠΕΡΙΓΡΑΦΗ
8.2 - Ο ΝΑΟΣ ΤΗΣ ΑΓΙΑΣ ΤΡΙΑΔΟΣ
ΒΑΛΕΟΝΤΑΤΩΝ - ΑΡΧΙΤΕΚΤΟΝΙΚΗ ΠΕΡΙΓΡΑΦΗ
|
| Ο οικισμός Βαλεοντάτες- Φωτ.2018-Ι.Π. |
1. ΓΕΝΙΚΑ ΣΤΟΙΧΕΙΑ - ΘΕΣΗ ΤΩΝ ΟΙΚΙΣΜΩΝ "ΒΑΛΕΟΝΤΑΤΕΣ" ΚΑΙ "ΜΑΡΓΑΡΙΤΕΣ"
![]() |
| Χάρτης ορίων τού οικισμού "Μαργαρίτες" (α) |
Η πρόσβαση στις Μαργαρίτες γίνεται από το παλιό λιθόστρωτο μονοπάτι που ξεκινά από την τοποθεσία Πλατανάκια, Ν.Α. τού ναού τής Αγ. Τριάδος Βαλεοντατών και συνέχιζε μέχρι το χωριό "Μανωλάτες"
(σήμερα, από ένα σημείο και μετά, ταυτίζεται με τον επαρχιακό δρόμο). Αυτός ήταν
και ο παλιός δρόμος που συνέδεε σε αντίθετη κατεύθυνση τις Μανωλάτες και τις Μαργαρίτες με τις Βαλεοντάτες και στη συνέχεια με τον Μαχαλά τού Αγίου Κωνσταντίνου, την έδρα (κατά τους χρόνους τής Ηγεμονίας) τού
Δήμου των Έξη Μαχαλάδων. Από εκεί στην συνέχεια
συνδέονταν με τον οικισμό Παλαιοχώρι, στον κάμπο Βουρλιωτών.
Εδώ είχε αναπτυχθεί μια ικανή υποδομή από σημαντικά κτίρια-αποθήκες-οινοποιεία,
τις "ταβέρνες", όπου μεταφέρονταν τα προϊόντα αμπελουργίας και
πωλούνταν σε μεσίτες.
Άλλη πρόσβαση
στις Μαργαρίτες γίνεται από τον επαρχιακό επίσης δρόμο
Μανωλατών, στα 370μ. περίπου πάνω από το πρώτο μονοπάτι που περιγράψαμε.
Τέλος, τρίτη πρόσβαση γίνεται από τις ανατολικές παρυφές των Μανωλατών,
πάνω στον δρόμο για τον Καστανόλογγο και στα 200μ περίπου
μετά την διασταύρωση αυτού με τον επαρχιακό δρόμο (οικία Νίκου Αγγελή).Η περιοχή τού οικισμού και των καλλιεργειών των Βαλεοντατων- Έποψη από τον επαρχιακό δρόμο Μανωλατών-Φωτ.2018
Από τη θέση
τους οι οικισμοί Βαλεοντάτες και Μαργαρίτες έχουν
μερικό έλεγχο προς τη θάλασσα, ενώ συγχρόνως προστατεύονται στην αγκαλιά των
παρυφών τού όρους "Καρβούνης". Γύρω τους οι πλαγιές είναι
διαμορφωμένες σε αλλεπάλληλες "πεζούλες" (αναβαθμίδες), ενώ
σχηματίζονται και πλατώματα που αρκετά καλλιεργούνται μέχρι σήμερα με κλήματα και
ελιές. Η βλάστηση είναι πλούσια και το Κακόρεμα που πηγάζει κάτω
από το ύψωμα "Ντούσα" τού Καρβούνη, περνάει κοντά στις Μαργαρίτες και στα πόδια τού οικισμού Βαλεοντάτες, για
να απολήξει στο χωριό "Κάτω Άγιο.Κωνσταντίνο". Μια άλλη διακλάδωση
τού ρέματος κατευθύνεται από την "Τρύπα τού Ασκητή" (Ευαγγελίστρια)
στην τοποθεσία "Π(ι)νακά", πάνω από τον Κάμπο Βουρλιωτών, από την
οποία υδροδοτούνταν και το επίνειο των Βουρλιωτών, τα "Αυλάκια". Το Κακόρεμα είναι ίσως τo "kestanelik cayι", το ποτάμι με
καστανιές που προσδιόρισε ο γεωγράφος Piri Reis σε χάρτη του όταν μεταξύ 1500-
1521 μ.Χ. περιέπλευσε τη Σάμο.
Οι Μαργαρίτες (αναφέρονται και ως Μαργαρίτιδες) και οι Βαλεοντάτες (αναφέρονται και ως Βαλεοτήδες και Βαλεοντάδες) πήραν το όνομά τους από τον πρώτο οικιστή τους, όπως και οι άλλοι Μαχαλάδες εκτός απ΄αυτόν τού Αγίου Κωνσταντίνου.
Οι Μαργαρίτες (αναφέρονται και ως Μαργαρίτιδες) και οι Βαλεοντάτες (αναφέρονται και ως Βαλεοτήδες και Βαλεοντάδες) πήραν το όνομά τους από τον πρώτο οικιστή τους, όπως και οι άλλοι Μαχαλάδες εκτός απ΄αυτόν τού Αγίου Κωνσταντίνου.
Το 1869 οι Μαργαρίτες είχαν 30 σπίτια, ένα ναϋδριο, 53 άνδρες (33 γεωργοί, 3
έμποροι, 1 ιερέας) και 54 γυναίκες = 107 άτομα, ενώ οι Βαλεοντάτες
είχαν 35 σπίτια με ένα ναϋδριο, 72 άνδρες (48 γεωργοί, 1 κτηματία, 8
βιομηχάνους, 1 ιερέα) και 75 γυναίκες= 147 άτομα.(3)
Περί το 1886,
οι "Μαργαρίτες" είχαν 26 σπίτια και 104 κατοίκους. (4)
Το 1920, οι
"Μαργαρίτες" κατοικούνταν ακόμα και είχαν 30 σπίτια, 3 καφενεία και
σχολείο (μαρτυρία τού Αντωνίου Βασιλικής - 86 ετών το 1996 - κατοίκου Μαργαριτών
και μετέπειτα των Μανωλατών).2. ΕΛΕΥΣΗ ΜΕΤΑΝΑΣΤΩΝ ΚΑΤΑ ΤΟΝ 18ο ΑΙΩΝΑ
Το
μεταναστευτικό ρεύμα που παρατηρήθηκε προς τη Σάμο κατά τον 18ο αιώνα και
προσδιόρισε το μέγεθος και τα χαρακτηριστικά τού πληθυσμού και των
οικισμών της σχετίζονταν με εξεγέρσεις των υποδούλων Ελλήνων και με ιστορικά
γεγονότα που διαδραματίζονταν στην ηπειρωτική Ελλάδα, με αφορμή τις ρωσικές
βλέψεις στα Βαλκάνια και στο Αιγαίο, που είχαν σαν κατάληξη τον ρωσοτουρκικό
πόλεμο (1768-1774) και την εξέγερση των υποδούλων Ελλήνων.
Ο Γεωργειρήνης
το 1666 απαρριθμεί στη Σάμο 2.400 (σπίτια εποίκων και ολίγων εντοπίων). (5) Από το 1680 ως το 1714, ο πληθυσμός
στη Σάμο ανερχόταν σε 11.200, κατ΄άλλους σε 10.000 κατοίκους. Στα 1714 σε 12.000-15.000 κατοίκους. Ο Ιησουίτης Ιεραπόστολος Ταριλλών
έγραφε το 1714: "...η ωραία νήσος Σάμος οικουμένη από δώδεκα ως δεκαπέντε
χιλιάδες ψυχές και περιλαμβάνουσα δεκαοκτώ κωμοπόλεις εκ τών οποίων τρείς
ομοιάζουν με πόλεις..." (6).
Το αντίθετο, μετατόπιση πληθυσμού από τη Σάμο προς την Εύβοια κυρίως, παρατηρείται έξη χρόνια αργότερα (στα 1834) με την απόφαση των τριών μεγάλων δυνάμεων να αποσχισθεί η Σάμος από το νεοσύστατο ελληνικό κράτος και να ενταχθεί στην Οθωμανική επικράτεια, υπό την διοίκηση χριστιανού Ηγεμόνα, οπότε 2.000 Σαμιώτες με τις οικογένειές τους εγκατέλειψαν το νησί. Το 1862 κατά τις ανταλλαγές πληθυσμών μεταξύ Ελληνικού κράτους και Οθωμανικής Αυτοκρατορίας εκπατρίζονται περίπου 200 οικογένειες από την Σάμο για την Εύβοια, Η στατιστική τού 1864 απογράφει 7.790 οικογένειες και 34.018 άτομα. Ο πληθυσμός όμως καθημερινά ελαττώνεται. Η εκμετάλλευση των οινεμπόρων και η τοκογλυφία των δανειστών ήταν η βασική αιτία τής εποχικής μετανάστευσης στη Μ.Ασία, αλλά και τής οριστικής στο εξωτερικό χιλιάδων Σαμίων. Μόνον στη Μ. Ασία μετανάστευσαν προς βιοπορισμό 5.000 αγρότες από τις 8.000 που ήταν τότε στο νησί. Καταχρεωμένοι και καταδιωκόμενοι από τούς δανειστές τους, έφταναν στη χρεωκοπία και στις κατασχέσεις των κτημάτων τους. Από τούς πλειστηριασμούς που ακολουθούσαν Κυριακές πρωί, μπροστά στα καφενεία, στις πλατείες των χωριών, ένας στους τρείς οφειλέτες απουσίαζε, παίρνοντας τον δρόμο τής μετανάστευσης, κυρίως στη Μ.Ασία, Αίγυπτο και Μολδοβλαχία. | ||||
3. ΙΔΡΥΣΗ ΤΩΝ ΣΥΝΟΙΚΙΣΜΩΝ ΒΑΛΕΟΝΤΑΤΕΣ ΚΑΙ ΜΑΡΓΑΡΙΤΕΣ
![]() |
| Χάρτης τού Τournefort 1717 |
Όσον αφορά
στους οικισμούς που εξετάζουμε:
Οι "Βαλεοντάτες" ιδρύθηκαν προ τού
1716. Ο ενοριακός ναός τής "Αγίας Τριάδος" φέρει -
στην αριστερή υπόστασή του - λιθανάγλυφη επιγραφή όπου διακρίνονταν η χρονολογία: "1716" (σήμερα είναι αφανής από τις
λαδομπογιές που την καλύπτουν). Ένα
έγγραφο επίσης τού 1792 φαίνεται πως υπάρχει στην Μητρόπολη και αναφέρεται στις Βαλεοντάτες.
Πρόκειται για τη Διαθήκη τού Ιερέα Θεόδωρου με την οποία αφήνει στη Μονή
Βροντά ένα σπίτι στους "Βαλεοτήδες". Μεταξύ δε των μαρτύρων αναγράφεται και κάποιος "διμίτρης βαλεοτής".
Οι "Μαργαρίτες" ιδρύθηκαν κατά την γνώμη μας προ τού 1716, όπως προκύπτει παρακάτω, από την μελέτη τού ενοριακού ναού τού
"Αγίου Γεωργίου". Υπάρχει και μια δυσανάγνωστη
φορητή, λιθανάγλυφη επιγραφή τού 1803:
"Ο
φτιάσας δι΄εξόδων κόνισμα, ελοξομίσθη ο παρών...Γεώργιος και έξοδα τών
Χριστιανών Κάτοικος Μαργαρίτιδες 1803 Αυγούστου τ".
Κατά την γνώμη μας η
χρονολογία 1803 δεν αφορά στην ίδρυση τού ναού όπως αναπτύσσουμε, στο σχετικό κεφάλαιο.
Οικογενειακές εγκαταστάσεις κατ΄αρχάς, οι δύο οικισμοί φαίνεται πως ενισχύονταν
σταδιακά από νέους οικιστές καθ΄όλη τη διάρκεια αυτού τού αιώνα. Οι εξωνάρθηκες στους δύο ναούς είναι μεταγενέστερες προσθήκες
που εξασφάλισαν την αναγκαία ευρυχωρία λόγω τής δημογραφικής
αύξησης τού πληθυσμού από τις μεταναστευτικές ροές.
3.1. ΤΑ "ΧΙΩΤΙΚΑ" - ΕΓΚΑΤΑΣΤΑΣΗ ΣΤΗΝ ΠΕΡΙΟΧΗ
Άλλες οικογενειακές μικροεγκαταστάσεις π.χ. Διολέτηδες, Σταματάκηδες, Χατζηγεώργηδες υπήρχαν στην περιοχή Βαλεοντάτων. Θα αναφερθούμε ιδιαίτερα στην εγκατάσταση "Χιώτικα", στα 150 μ. περίπου από τη διασταύρωση τής εθνικής οδού με την επαρχιακή οδό Μανωλατών και με κατεύθυνση τα "Πλατανάκια". Η τοποθεσία προσδιορίζεται στην ανατολική όχθη τού ρέματος, κοντά στο ερειπωμένο παρεκκλήσι τού Αϊ-Λιά. Υπήρχε εκεί και νερόμυλος. Η θέση ήταν γνωστή ως "τού Μυλωνά". Παραπέμπει σε μικροεγκατάσταση Χιωτών εποίκων που ίσως να σχετίζεται με την εποίκηση τού Κάμπου Βουρλιωτών και τού Παλαιοχωρίου (13) ή πολύ αργότερα (το 1822) με την καταστροφή και την μεγάλη σφαγή τής Χίου. Εκεί στον Κάμπο λατρεύσανε οι Χιώτες και τις Αγίες: Ματρώνα και Πελαγία, κτίζοντας δύο ναούς.
![]() |
| Μαστιχόδεντρα (β) |
Η περιοχή στα "Χιώτικα" ήταν γεμάτη σχίνα και γίνεται λόγος από κατοίκους για την ύπαρξη εκεί μαστιχόδενδρων. Μάλιστα ένα μεγάλο μαστιχόδενδρο υπήρχε μπροστά στον ναϊσκο τού Αϊ-Λιά, περί το 1960-65(14). Το μαστιχόδενδρο είναι μία ποικιλία (pistacia lentiscus var. chia) τού πασίγνωστου είδους τής Μεσογείου, "σχίνος".
![]() |
| Μαστίχα (γ) https://el.wikipedia.org/wiki |
|
4. ΣΥΝΟΠΤΙΚΑ ΟΙ ΙΣΤΟΡΙΚΕΣ ΣΥΓΚΥΡΙΕΣ ΣΤΗ ΣΑΜΟ ΚΑΤΑ ΤΗ ΔΙΑΡΚΕΙΑ ΤΗΣ ΟΙΚΗΣΗΣ ΣΕ ΒΑΛΕΟΝΤΑΤΕΣ ΚΑΙ ΜΑΡΓΑΡΙΤΕΣ
Θεωρούμε αναγκαίο κατά την κρίση μας να αναφερθούμε σύντομα στα βασικά ιστορικά γεγονότα καθώς και στις οικονομικές συνθήκες που καθόρισαν το 18ο και 19ο αιώνα στη Σάμο, προκειμένου να εντάξουμε τους δύο οικισμούς που μελετάμε στο πλαίσιο τής εποχής κατά την οποία ιδρύθηκαν και αναπτύχθηκαν.
4.1. ΕΝΕΤΟΙ
ΚΑΙ ΠΕΙΡΑΤEΙΑ ΣΤΟ ΑΙΓΑΙΟ ΚΑΤΑ ΤΟΝ 18ο ΚΑΙ 19ο ΑΙΩΝΑ
|
| Τα ερείπια των οικισμών
"Βαλεοντάδες" και "Μαργαρίτες"είναι εκεί και θυμίζουν την
αναγκαία επιλογή και εγκατάσταση κατατρεγμένων μεταναστών σε αθέατες
περιοχές, σε εποχές γενικότερης ακόμα ανασφάλειας των νησιωτών λόγω των πολέμων,
αλλά κυρίως λόγω των πειρατικών επιδρομών που επιχειρούνταν ακόμα μέσα στον
18ο και στον 19ο αιώνα στο Αιγαίο. |
Από το β΄μισό τού 16ου αιώνα, όταν εποικίσθηκε η
Σάμος επί οθωμανικής κυριαρχίας, οι οικιστές καταφύγανε για τις εγκαταστάσεις
τους κυρίως στα ορεινά τού νησιού, σε απόκρυφες θέσεις, κοντά στα ερειπωμένα
κάστρα, οπωσδήποτε σε θέσεις απομακρυσμένες από τη θάλασσα, φοβούμενοι κυρίως
τους πειρατές. Στις αρχές του 17ου αιώνα είχαν σχηματιστεί τα
περισσότερα από τα σημερινά χωριά της Σάμου, αρχικά σε απόσταση από τη θάλασσα
και αργότερα, από τα μέσα του 18ου αιώνα, και σε παράλιες περιοχές. Ο Ber. Randolph ο οποίος επισκέφθηκε τήν Σάμο, μεταξύ
τού 1677 και 1680, έγραψε γι΄αυτήν: "πρόκειται για μάλλον φτωχή
Αρχιεπισκοπή, αφού δεν προσφέρει ικανές προσόδους στο Πατριαρχείο...Οι
Τούρκοι δεν διακινδύνευσαν τήν μετοίκηση τούρκικου πληθυσμού στο νησί, παρά
μόνον τήν παρουσία διοίκησης και υπαλλήλων γιά τήν είσπραξη τών φόρων,
λόγω τών επαναλαμβανόμενων πειρατικών επιδρομών. Οι πειρατές άρπαζαν ότι
έβρισκαν, ενώ ο Καδής και οι Τούρκοι κατέφευγαν στα βουνά(17).
1629- Bενετικό εμπορικό πλοίο (στ)
|
"Oι Βενετοί όταν σε κάποια επιδρομή έκαναν τήν Σάμο
φόρο υποτελή, εισέπρατταν 20.000(;) και το μεγαλύτερο ποσό σε είδη (σιτηρά,
κρασί και ζώα)... Με τήν ειρήνη το 1656 μεταξύ Βενετών και Τούρκων, ήταν
υποχρεωμένοι (οι Σαμιώτες)να καταβάλουν τα τών Βενετών στούς Τούρκους"(19).
Το 1669 εγκαταλελειμμένοι οι Βενετοί από συμμάχους,
παραδίδουν τη μεγάλη κτήση τους την Κρήτη στους Τούρκους, οι οποίοι θέλουν πλέον να υποστείλουν τη σημαία των Βενετών σε όλη την Άσπρη θάλασσα.
Ξεκινά και πάλι πόλεμος, δεινά και αιχμαλωσίες για τούς
νησιώτες. Όλο το ελληνικό πέλαγος βρέθηκε εκτεθειμένο στις
επαναλαμβανόμενες καταστροφικές εχθροπραξίες.
"Οι ανταγωνισμοί τών ευρωπαϊκών ναυτικών/εμπορικών δυνάμεων που διέρχονταν
με τα πλοία τους από το Αιγαίο και διακινούσαν τα εμπορεύματά τους από και προς
τήν Ανατολή, όπως βέβαια και το πλήθος τών νομιμοποιημένων κουρσάρων ή και τών
εκτός νόμιμων πλαισίων που δρούσαν στα νερά του, επιβεβαιώνουν το χαρακτηρισμό
τής θάλασσας τού Αιγαίου, ως "Αrchipelagus turbatus" (20).
Ενώ Μαλτέζοι, Αλγερίνοι, Άγγλοι συνέχισαν να κουρσεύουν τα πλοία στο αρχιπέλαγος, εμφανίστηκαν και
οι χριστιανοί πειρατές με κάθε λογής πλοία.
Απανωτές επιθέσεις μέσα στον 18ο
αιώνα (Πελοποννησίων και Κρητικών μεταξύ άλλων), τρομοκρατούν τον
πληθυσμό με αρπαγές ακόμα γυναικών και νέων κοριτσιών. Οι γεωργοί, όσο
δουλεύανε στα κτήματά τους, έβαζαν για σκοπιές (βίγλες) συνήθως γυναίκες, σε υψηλά
σημεία για να εποπτεύουν την θάλασσα.
![]() |
-Ελληνες πειρατές (ζ) |
Για
το φαινόμενο τής πειρατείας παραθέτουμε ένα πολύ κατατοπιστικό απόσπασμα από
μελέτη τού Ν. Μπελαβίλα:
"Από το 1703 έως το 1792, σε 277
καταγεγραμμένες επιθέσεις εναντίον γαλλικών πλοίων, στον ελληνικό θαλάσσιο
χώρο, οι 102 πραγματοποιήθηκαν από Ελληνες. Οι πειρατικές επιθέσεις κατά την
διάρκεια εκείνου του αιώνα πρέπει να ήσαν χιλιάδες... Η ελληνική πειρατεία
συμβάδισε με την άνθιση της ναυτιλίας και την μεγέθυνση τών παράκτιων
νησιωτικών πόλεων...φαινόμενα τού 18ου αιώνα. Κατά τον αιώνα αυτόν..οι νησιώτες κυριάρχησαν στις θαλάσσιες μεταφορές αλλά και
στα "εκτός νόμου" ναυτικά περιστατικά τού Αιγαίου... Τα
πλοία τού 18ου αιώνα ακολουθούσαν τη διαγώνιο τού αρχιπελάγους. Ο ναυτικός
δρόμος συνέδεε τα Δαρδανέλια με το Τσιρίγο (Κύθηρα),
τη Μαύρη θάλασσα και την Κωνσταντινούπολη, με τη δυτική Μεσόγειο. Ο άλλος
μεγάλος ναυτικός δρόμος διέσχιζε τα στενά που χωρίζουν τη μικρασιατική ακτή με
τα νησιά τού ανατολικού Αιγαίου και τα Δωδεκάνησα. Από την Ρόδο και την Κάρπαθο
κατευθυνόταν προς την Αλεξάνδρεια και τα λιμάνια τής Μέσης Ανατολής. Τους
κύριους δρόμους συμπλήρωναν δεκάδες παραλλαγές, όπως και το πυκνό πλέγμα τών
διανησιωτικών συνδέσεων. Η τεχνολογία τών πανιών είχε απελευθερώσει τη ναυτιλία
από την σχεδόν παράκτια πλεύση τού Μεσαίωνα...καθώς (τα πλοία) δεν ήσαν
αναγκασμένα κάθε νύχτα να προσορμιστούν σε κάποια ακτή, ή μπορούσαν να
ταξιδέψουν με όλους τούς ανέμους. Τα φοβερά σημεία ενέδρας κατά μήκος τών
ναυτικών δρόμων τού αρχιπελάγους, συνέχισαν να σημειώνονται στούς ευρωπαϊκούς
πορτολάνους και να αποτελούν τόπους αυξημένης επιφυλακής και κινδύνου για όσους
τα διέσχιζαν... (μεταξύ αυτών) το Νταρ Μπογκάζ τής Σάμου και τα στενά
τών Φούρνων....
![]() |
| Αναπαράσταση χάραξης Πορτολάνας. (η) |
Παράλιες ζώνες και οικισμοί στη Σάμο με σκοπό το εμπόριο και τις ευκαιρίες που προσέφερε η θάλασσα αναπτύχθηκαν στα τέλη του 18ου αιώνα και τις αρχές του 19ου. Στην περιοχή των Έξη Μαχαλάδων αναπτύχθηκε σταδιακά ο παραθαλάσσιος οικισμός τού Αγίου Κωνσταντίνου, κατ΄ αρχάς με την εγκατάσταση εκεί "ταβερνών" οινοποιείας, όπως συνέβη και στον Κάμπο Βουρλιωτών. Από τα "Αυλάκια", το επίνειο των Βουρλιωτών διακινούνταν με βάρκες τα προϊόντα τής περιοχής. Στην περίοδο τής Ηγεμονίας λειτουργούσε εκεί τελωνείο και λιμενικός σταθμός. Από το μικρό λιμανάκι ξεκινούσαν πλοία και για την Ανατολή. Στη διάρκεια δε τής ιταλικής κατοχής διέφυγαν πολλοί Σαμιώτες, πέρασαν στην Τουρκία και κατέληξαν πρόσφυγες στη Μέση Ανατολή.
4.2. ΤΟ ΚΙΝΗΜΑ ΤΩΝ ΚΑΡΜΑΝΙΟΛΩΝ (22)
![]() |
| Από το αλμπουμ Ν.Θ.Κόγιας (θ) |
![]() |
| Ανεμόμυλοι στη Σάμο - Από το άλμπουμ Ν.Θ.Κόγια (ι) |
Από
τη δεκαετία δε του 1780 πληθαίνουν οι αντιδράσεις απέναντι στις αυθαιρεσίες των
κοτζαμπάσηδων.
"Έτσι στις αρχές του 19ου αιώνα συνέπηξαν τη φατρία των Καρμανιόλων, εμφορούμενοι
από προοδευτικές ιδέες ένός μικρού αλλά εξαιρετικά δραστήριου στρώματος
διανοουμένων και επαναστατών, που είχαν αναμειχθεί ενεργά στους ναπολεόντειους
πολέμους και «μετακένωσαν» στο νησί τα ιδεώδη της γαλλικής Επανάστασης. Η
φατρία τών Καρμανιόλων συγκρούστηκε με το σύστημα των παλαιών προεστών,
εκφραστών της οθωμανικής νομιμότητας, που ονομάστηκαν Καλικάντζαροι εξαιτίας
των μυστικών και αδιαφανών συσκέψεων και της συνεργασίας τους με τις οθωμανικές
αρχές του νησιού" (28).
1824 - Aναμέτρηση με τους Οθωμανούς (κ)
|
«Τον
Μάρτιο του 1807, συγκαλείται η λαϊκή επαναστατική Συνέλευση των κατοίκων από
όλα τα χωριά, στην οποία συμμετείχαν «περισσοί ἔως ἑπτὰ χιλιάδες». Ένας παλιός
θεσμός της τοπικής αυτοδιοίκησης θα προσλάβει νέο επαναστατικό περιεχόμενο. Στη
μεγάλη Συνέλευση, αλλά και στις τοπικές Συνόδους, συμμετέχουν όλοι οι κάτοικοι,
άνδρες και γυναίκες, ενώ, στις τακτικές Συνόδους, αντιπρόσωποι από όλα τα
χωριά. (29). Στο εξής, κάθε μεγάλη στιγμή των κοινωνικών και εθνικών αγώνων θα
σφραγίζεται από τη σύγκληση αυτού του υπέρτατου οργάνου της αυτοδιοίκησης,
κάποιοι θα έλεγαν της άμεσης δημοκρατίας, του «Κοινού των Σαμίων».
Χαρακτηριστική είναι φράση επιστολής που έστειλαν οι Επίτροποι προς
τον Λυκούργο Λογοθέτη, τον Σεπτέμβριο του 1807: «τοιαύτη δαιμονικὴ ἰδέα
τοὺς ἐκυρίευσεν τὸν στοχασμὸν καὶ θέλουν νὰ εἶναι τὰ πάντα κοινὰ» (30).
4.3. Η ΣΑΜΙΑΚΗ ΕΠΑΝΑΣΤΑΣΗ ΤΟΥ 1821 (22)
Στις
18 Απριλίου 1821 από την ηγετική ομάδα τής φατρίας των
Καρμανιόλων και με επικεφαλής τον Λυκούργο Λογοθέτη, κηρύχτηκε η
επανάσταση και επικράτησε γρήγορα, λόγω τού χριστιανικού πληθυσμού του νησιού
και τής συναινετικής εμπλοκής τής Εκκλησίας, καθώς και τής απουσίας ισχυρών
οθωμανικών δυνάμεων.
4.3. Η ΣΑΜΙΑΚΗ ΕΠΑΝΑΣΤΑΣΗ ΤΟΥ 1821 (22)
![]() |
| Ο Λυκούργος Λογοθέτης (λ) |
![]() |
| Η σημαία της επανάστασης (μ) |
![]() |
| 1824- Η Nαυμαχία της Μυκάλης (ν) |
Στη διάρκεια αυτών των χρόνων δεν θα πάψουν οι συγκρούσεις με την ελληνική κυβέρνηση και τους εκπροσώπους της, ιδιαίτερα μετά την τραγωδία της Χίου (Απρίλιος 1822), η οποία θα αποδοθεί από αρκετούς στην «αποκοτιά» του Λυκούργου και των Σαμίων. (33) Οι Σάμιοι συνέχισαν τις προσπάθειές τους για ενσωμάτωση στην Ελλάδα. O Λογοθέτης μετά από διάφορα γεγονότα που διαδραματίστηκαν στα κέντρα εξουσίας, επέστρεψε στο νησί και ιδρύθηκε τότε η «ανεξάρτητη» Σαμιακή Πολιτεία χωρίς όμως να τύχει αναγνώρισης. Για δύο χρόνια (1828-1830) εγκαταστάθηκε στο νησί διοίκηση υπό τον Κωλέττη, διορισμένη από τον Καποδίστρια, και η Σάμος έγινε έδρα του τμήματος των Ανατολικών Σποράδων, που περιλάμβανε τα νησιά Σάμο, Κάλυμνο, Λέρο, Πάτμο και Ικαρία
.
![]() |
| Λιμάνι Βαθέος - γερμανική γκραβούρα 1825 (ξ) |
Προηγουμένως, οι τρεις πρέσβεις των Μεγάλων Δυνάμεων πιέζανε τις αρχές τού νησιού "να κάμουν τήν πράξιν τής υποταγής πρός τήν Οθωμανικήν κυβέρνησιν.." Τα χωριά τότε αντιδράσανε με συνελεύσεις και αρνήθηκαν με διακηρύξεις. Μεταξύ αυτών, οι κάτοικοι των Έξη Μαχαλάδων, συγκεντρώθηκαν στον Άγιο Κωνσταντίνο στις 17 Μαϊου 1831 και διατρανώσανε την βούλησή τους για την μέχρι εσχάτων συνέχιση τού αγώνα, με την παρακάτω διακήρυξη:
"Ημείς οι κάτοικοι τού Αγίου Κων/νου και τών
πέριξ Μαχαλάδων, συναχθέντες άπαντες, ιερωμένοι και λαϊκοί αναγνώσαντες τάς
διακοινώσεις τών εν Κωνσταντινουπόλει τριών πρέσβεων τών συμμάχων Δυνάμεων πρός
τούς εν Σάμω αντιπροξένους εις τας οποίας είδαμεν να μας γράφουν να
κάμωμεν πράξιν υποταγής προς την Οθωμανικήν κυβέρνησιν. Ημείς όμως, κατά την
απόφασίν μας απ΄αρχής τού ιερού αγώνος και κατά τάς αποφάσεις τών τριών
συνελεύσεων τής πατρίδος ημών Σάμου, οπού απεφασίσαμεν ν΄αποθάνωμεν
ελεύθεροι και όχι να ζήσωμεν υπό τόν ζυγόν τού τυράννου, αυτό απεφασίσαμεν
άπαντες καί ήδη καί πάντα, και ούτε πράξιν υποταγής κάμνομεν είς τήν Οθωμανικήν
Πόρταν ούτε Τούρκον θέλομεν νά ιδώμεν είς τό εξής, αλλά προτιμώμεν να λάβωμεν
θάνατον από τά τρείς Χριστιανικάς Δυνάμεις και υποσημειούμεθα.
Τη 17 Μαϊου 1831 εν Αγίω Κωνσταντίνω
(έπονται αί υπογραφαί κτλ.)" (35)
Η
παρουσία στους αγώνες των κατοίκων των Έξη Συνοικιών, είναι
αδιάλειπτη και αποτυπώθηκε στις διασωζόμενες πηγές των Συνελεύσεων των
Σαμιωτών. Διασώζεται επίσης μια πληροφορία σχετικά με τη συμμετοχή τους
στην προσπάθεια απελευθέρωσης τής Χίου: " Οι εις Χίον μεταβάντες
οπλίτες διετέλουν υπό τας διαταγάς τού Λουκά Ρουμελιώτου...εφονεύθησαν επ΄ίσης
και ο Γεώργιος Καλέκης εκ Βαλεοντάδων και Ιωάννης Ταμπάκης εκ Βαθέος" (36).
Κατά τα επεισόδια δε που εκδηλώθηκαν στα χωριά
Βουρλιώτες και Αρβανίτες και είχαν σαν συνέπεια τον φόνο από την
αστυνομία τού Γεωργίου Καραμανόλη από το χωριό Μανωλάτες (ο οποίος αρνούνταν να
συμμορφωθεί στις εντολές τής νέας Διοίκησης), πληροφορούμαστε ότι:
"άπαντες οι φιλοτάραχοι
τών Βουρλιωτών και τών άλλων χωρίων, φοβηθέντες μη πάθωσι το τού Καραμανόλη,
εδράξαντο τών όπλων και έλαβον ως ειπείν θέσιν απειλητικήν... Εκεί (στους
Βουρλιώτες) είχεν υπάγει και ο αδελφός τού φονευθέντος Καραμανόλη μετά
οπλοφόρων εκ των Εξ Γειτονιών"(37).
4.4. Η ΜΕΤΑΝΑΣΤΕΥΣΗ ΤΩΝ ΣΑΜΙΩΝ
Η ηγεμονική διοίκηση επιβλήθηκε στις 13 Μαϊου 1834 από μοίρα τού οθωμανικού στόλου υπό το Χασάν μπέη, που με συνοδεία 400 στρατιωτών επιβίβασε στην ξηρά τον Βογορίδη ως διοικητή τής Σάμου. Στο μεταξύ, είχε προ πολλού αποκλείσει το νησί και παραλύσει το εμπόριο απαγορεύοντας τα εμπορικά πλοία να προσεγγίσουν ή να αποπλεύσουν από τη Σάμο. Απαγορευόταν η διακίνηση γεννημάτων από το Βαθύ προς τις άλλες κωμοπόλεις και χωριά, εμποδίζονταν η μετάβαση φτωχών θεριστών και γεωργών στην Μικρά Ασία χωρίς την προηγούμενη δήλωση υποταγής τους στην Οθωμανική Διοίκηση, απαγορεύονταν η διαφυγή στην Ελλάδα των οικογενειών των μη υποταχθέντων Σαμίων. Ο Λυκούργος που η ζωή του πλέον κινδύνευε, κατέφυγε στην Τήνο. Ο Ιεράρχης Κύριλλος, λίγες ημέρες μετά, καταζητούμενος από τον Χασάν Μπέη, ανεχώρησε κι αυτός από τη Σάμο μαζί με την οικογένεια τού Λ. Λογοθέτη.
4.4. Η ΜΕΤΑΝΑΣΤΕΥΣΗ ΤΩΝ ΣΑΜΙΩΝ
Η ηγεμονική διοίκηση επιβλήθηκε στις 13 Μαϊου 1834 από μοίρα τού οθωμανικού στόλου υπό το Χασάν μπέη, που με συνοδεία 400 στρατιωτών επιβίβασε στην ξηρά τον Βογορίδη ως διοικητή τής Σάμου. Στο μεταξύ, είχε προ πολλού αποκλείσει το νησί και παραλύσει το εμπόριο απαγορεύοντας τα εμπορικά πλοία να προσεγγίσουν ή να αποπλεύσουν από τη Σάμο. Απαγορευόταν η διακίνηση γεννημάτων από το Βαθύ προς τις άλλες κωμοπόλεις και χωριά, εμποδίζονταν η μετάβαση φτωχών θεριστών και γεωργών στην Μικρά Ασία χωρίς την προηγούμενη δήλωση υποταγής τους στην Οθωμανική Διοίκηση, απαγορεύονταν η διαφυγή στην Ελλάδα των οικογενειών των μη υποταχθέντων Σαμίων. Ο Λυκούργος που η ζωή του πλέον κινδύνευε, κατέφυγε στην Τήνο. Ο Ιεράρχης Κύριλλος, λίγες ημέρες μετά, καταζητούμενος από τον Χασάν Μπέη, ανεχώρησε κι αυτός από τη Σάμο μαζί με την οικογένεια τού Λ. Λογοθέτη.
Οι Σάμιοι, παρά την τρομοκράτησή
τους ενέμεναν στην απόφαση τής κοινής Συνέλευσης τού Σεπτεμβρίου 1833 στο
Βαθύ για τη μετανάστευσή τους στην ελεύθερη Ελλάδα. Για το ζήτημα αυτό διαπραγματεύονταν προ πολλού οι ηγέτες τους με τις
Μεγάλες Δυνάμεις, το ελληνικό κράτος και τον βασιλέα μέσω τής Επιτροπής
Μετανάστευσης, αιτούμενοι ελληνικά πλοία για την αποχώρησή τους από το νησί και θέτοντας
όρους για την επιλογή τού τόπου εγκατάστασης, τις καλλιεργήσιμες γαίες, την εργασία κ.λ.π., προκειμένου να εξασφαλίσουν καλές συνθήκες διαβίωσης στην
νέα πατρίδα.
Τον Οκτώβριο/ Νοέμβριο 1834 ο βασιλέας Όθων επικυρώνει επιτέλους τις αποφάσεις
τού Υπουργικού Συμβουλίου περί μεταναστεύσεως των Σαμίων, κατά τις οποίες
"η Χαλκίς διακηρύττεται ως ο πρώτιστος τόπος τής αποκαταστάσεως τών
Σαμίων, η πρωτεύουσα τών Σαμίων" (για τον λόγο ότι η Σάμος ανταλλάχθηκε υπέρ τής
ελευθερίας τής Εύβοιας και τής Αττικής). Άλλα χωριά εγκατάστασης στην Εύβοια θα ήταν τα Καστέλια, τα
Ψαχνά, η Σκεπαστή, Κορκουλή, Γιάλτρα, Αγιος Θεόδωρος, και Αυγαριά όπου θα
διατίθενταν στις οικογένειες των Σαμίων 50.000 στρέμματα γης. Θα εξασφαλίζονταν
δημόσια κτίρια και σπίτια Τούρκων (που μετοίκησαν στην
Ασία), μια παραθαλάσσια ζώνη (για να κτιστούν σπίτια, καταστήματα,
αποθήκες κ.λ.π.), εθνικές και μοναστηριακές
ακαλλιέργητες γαίες, η εξαγορά των νήσων "Πεταλιών" και τού λιμένα "Μαρμάρι" (κατόπιν διαπραγματεύσεων με τους Τούρκους
πληρεξούσιους),
ο διορισμός Σαμίων σε δημόσιες θέσεις, μερίδια ανά οικογένεια και ανά άτομο
στην περιοχή των βάλτων γύρω από την Χαλκίδα (με τον όρο τής αποξήρανσης αυτού
μέσα σε δύο χρόνια) και πολλές άλλες διευθετήσεις.
Με άλλο ψήφισμα η Συνέλευση απεκήρυξε τους Λυκούργο Λογοθέτη, Σταμάτιον Γεωργιάδη, αρχιερέα Κύριλλον, Κωνσταντίνο Λαχανά και 63 άλλους Σαμίους "ως αποβλήτους και απαραδέκτους τού λοιπού εν Σάμω" και απαίτησε να μείνουν στη Σάμο 200 Τούρκοι στρατιώτες και δύο πλοία προς απόκρουση κάθε ενδεχόμενης εξωτερικής επιδρομής.
Παραθέτουμε ένα κείμενο τού Ε. Σταματιάδη, που διηγείται με ένταση και νωπές ακόμα τις μνήμες, την τραγική μετανάστευση και τα δεινά των Σαμιωτών:
Ο
Χασάν Μπέης ωστόσο, με μύριους τρόπους παρεμπόδιζε τη μετανάστευση. Παρά την
εντολή τού Σουλτάνου να επιτραπεί σε όποιους θέλουν να
μεταναστεύσουν, ο Κωνσταντίνος Μουσούρος εξέδωσε μια σειρά περιοριστικών εντολών προς τις
δημαρχίες των κωμοπόλεων, καθιστώντας την μετανάστευση παντελώς ανέφικτη.
Την
26η Αυγούστου 1834 συνεκάλεσε την πρώτη Συνέλευση (από συστάσεως τής
Ηγεμονίας) που είχε καθήκον να επιβάλει με ψήφισμα την υποταγή τού νησιού, να
εκλέξει επιτροπεία και δια τού ηγεμόνα Στεφάνου Βογορίδη να δηλωθεί
εγγράφως η υποταγή στον Σουλτάνο. Το εν λόγω έγγραφο λήγει με την εξής φράση:
"Είμεθα
μέχρι θανάτου οι πλέον ευγνώμονες και οι πλέον πιστοί τών υπηκόων σου"
Ο α. γραμματεύς τής Συνελεύσεως Ο Πρόεδρος τής Συνελεύσεως
Λάμπρος Ιωαννίδης Κ.Αντωνιάδης
(Έπονται οι υπογραφές των πληρεξουσίων)
Ο α. γραμματεύς τής Συνελεύσεως Ο Πρόεδρος τής Συνελεύσεως
Λάμπρος Ιωαννίδης Κ.Αντωνιάδης
(Έπονται οι υπογραφές των πληρεξουσίων)
Με άλλο ψήφισμα η Συνέλευση απεκήρυξε τους Λυκούργο Λογοθέτη, Σταμάτιον Γεωργιάδη, αρχιερέα Κύριλλον, Κωνσταντίνο Λαχανά και 63 άλλους Σαμίους "ως αποβλήτους και απαραδέκτους τού λοιπού εν Σάμω" και απαίτησε να μείνουν στη Σάμο 200 Τούρκοι στρατιώτες και δύο πλοία προς απόκρουση κάθε ενδεχόμενης εξωτερικής επιδρομής.
Άξιον
απορίας είναι πώς μπόρεσαν 2.000 και πλέον οικογένειες να υπερκεράσουν
τα εμπόδια τού Μουσούρου και να μεταναστεύσουν στην Ελλάδα. Στη Χαλκίδα
βρέθηκαν χωρίς πόρους, χωρίς καμιά περίθαλψη. Αλλά για την αποτυχία τού
συνοικισμού συνετέλεσε βασικά η Ελληνική Κυβέρνηση
που πολλά υποσχέθηκε και τίποτα ή ελάχιστα έπραξε. Λαμβάνοντας οι Σάμιοι
ακαλλιέργητη μόνον γη περιέπεσαν σε τέτοιο βαθμό στέρησης, ώστε πολλοί αναγκάστηκαν
να πουλήσουν τις χύτρες, τα καζάνια, τα εγκοίμητρά τους, γιά να αγοράσουν ψωμί
για τα πεινασμένα παιδιά τους. Οι αντιδράσεις τής επιτροπείας που συστήθηκε με
πρόεδρο τον Ιωάννη Λεκάτη ήταν φωνή "βοώντων εν ερήμω". Έτσι,
πολλοί απ΄αυτούς, όσοι επέζησαν από αρρώστιες κι από την ταλαιπωρία (1.500 περίπου οι νεκροί), επανέκαμψαν
στη Σάμο, άλλοι δε σκόρπισαν από δώ κι από κεί. Ο συνοικισμός στην Εύβοια
είχε γενικώς αποτύχει (38).
"Και
άρχισε λοιπόν η μετανάστευση τών Σαμίων στην Ελλάδα πρίν ή περισσότερο η
βία -υπό τον ζυγό τής δουλείας- υποβάλει την πατρίδα τους, γιατί αυτό
ήταν το τελευταίο καταφύγιο που απέμεινε γι΄αυτούς. Τι σπαρακτικό, αλλά υψηλό
συγχρόνως και μεγαλοπρεπές και υπέροχο θέαμα! Γέροντες σκυφτοί από το βάρος τής
ηλικίας, γυναίκες ασθενείς, άκακα παιδιά εγκατέλειπαν την γεννέτρια γή και
έφευγαν αλλού, ζητώντας νέα πατρίδα! Ανθρωποι άλλοτε εύποροι εγκατέλειπαν τους
αμπελώνες, τους ελαιώνες τους και τους καλο-καλλιεργημένους αγρούς τους και την
αγαπημένη πατρική εστία και αποχωρούσαν σε ξένη γή, όπου τούς περίμενε η
φτώχια, η στέρηση τών πάντων, η γύμνωση, ο θάνατος! Ναί, ο θάνατος, γιατί σε
χίλια πεντακόσια περίπου αριθμούνται, μέσα σε λίγο διάστημα, τα θύματα τού
πυρετού και τών άλλων ασθενειών που γέννησε η κακουχία και η νοσηρότητα τών
παρακείμενων στην Χαλκίδα ελών. Με φρίκη θυμούνται οι επιζώντες εκείνης τής
εποχής το οικτρό θέαμα πολλών χιλιάδων λαού που διέμεναν στην ύπαιθρο μέσα στην
κάψα τού ήλιου και στη δροσιά τής νύχτας, στερουμένων τα πάντα, πειναλέων,
ριγηλών. Ελευθερία! Πόσα εξ΄αιτίας σου υποφέρουν αυτοί που σε λάτρεψαν! ...Αφού
από τους πρώτους άδραξαν τα όπλα κι έδειξαν απαράμιλλο ηρωϊσμό και ανδρεία
καθ΄όλο το διάστημα τού αγώνα γιά την ανεξαρτησία, βλέποντας οτι η πλάνα
διπλωματία ματαίωσε τους καρπούς τών αγώνων τους, προτίμησαν να εκπατρισθούν
μάλλον ή να υποταχθούν έμπαλιν στον εθνικό τους εχθρό; Πάνω από δύο
χιλιάδες αριθμούνται οι οικογένειες που μετανάστευσαν από τήν Σάμο και
κατέφυγαν στην Χαλκίδα. Παρουσιάστηκε δε τότε και κάποιος Γάλλος , Προζέν
Σολαδάμ στ΄όνομα, ανώτερος δε ταξίαρχος τού τάγματος τού Ηλίου τιτλοφορούμενος,
ο οποίος πρότεινε στους μεταναστεύοντες να αγοράσει όλα μαζί τα κτήματα
που αφήναν πίσω τους, γιά να ιδρύσει στη Σάμο κάποιο επιστημονικό κατάστημα,
αγνοούμε τί είδους....Αλλ΄όμως απέναντι τής υλικής βίας καταπνίγονταν και
τα ευγενέστερα τών αισθημάτων...Ετσι μέχρι τα τέλη Ιουλίου τού 1834 είχε
συμπληρωθεί με την βία η υποταγή όλης τής Σάμου και υπό τον φόβο τής
Δαμοκλειας σπάθης, οι Σάμιοι που δεν μπόρεσαν να μεταναστεύσουν,
αναγκάστηκαν να διασπάσουν τον δεσμό που -επί 14 όλα κι όλα χρόνια - τους
συνέδεε με την Ελλάδα...και να ομολογήσουν σαν νόμιμο αυτών κυρίαρχο τον
Σουλτάνο..." (39).
4.5. ΠΕΡΙΟΔΟΣ ΗΓΕΜΟΝΙΑΣ (1834-1912)
Η περίοδος της ηγεμονίας Σάμου διήρκεσε από το 1834 μέχρι το 1912. Το καθεστώς αμφισβητήθηκε αρκετές φορές από τους Σαμιώτες, κυρίως με αφορμή την αυταρχική άσκηση εξουσίας των ηγεμόνων ή την παραβίαση του καταστατικού χάρτη. Μετά από 78 χρόνια, το 1912, η σαμιακή εθνοσυνέλευση (που προήλθε από επαναστατικό κίνημα υπό την ηγεσία του Θεμιστοκλή Σοφούλη) κήρυξε την ένωση τού νησιού με την Ελλάδα.
To εθνόσημοτης ηγεμονικής Σάμου (ο)
|
Η
πρώτη περίοδος τής ηγεμονίας (1834-1849) υπήρξε ιδιαίτερα σκληρή. Ο ηγεμόνας
Στέφανος Βογορίδης διοίκησε το νησί με αντιπροσώπους που ενδιαφέρθηκαν όχι τόσο
για την οργάνωση τού αυτόνομου κρατιδίου όσο για την είσπραξη των φόρων
φτάνοντας σε υπερβολικές καταχρήσεις. Αποτέλεσμα τής κακοδιοίκησης υπήρξε η
εξέγερση του 1850, που οδήγησε σε αλλαγή ηγεμόνα και στην αποσαφήνιση των όρων
τής αυτονομίας, αλλά μετά την καταστολή της (με την επέμβαση του τουρκικού
στρατού), στην πρωτεύουσα της Ηγεμονίας εγκαταστάθηκε μόνιμη οθωμανική
φρουρά. Ήταν η τελευταία
επανάσταση των Καρμανιόλων.
Οι βάσεις τής αυτονομίας έγιναν αναγνωρίσιμες μετά το 1851. Οργανώθηκαν οι υπηρεσίες τής διοίκησης, οι δήμοι, τα ληξιαρχεία, τα συμβολαιογραφεία, τα δικαστήρια, η εκπαίδευση, ιδρύθηκαν σχολεία σε όλες τις κοινότητες του νησιού, το Πυθαγόρειο Γυμνάσιο και το Ανώτερο Παρθεναγωγείο (1855), δημοσιεύτηκαν βασικοί νόμοι και επιχειρήθηκε να αντιμετωπιστούν προβλήματα τής γεωργίας, τής οικονομίας και τής κοινωνίας. Περίπου στα μέσα τής δεκαετίας του 1850 ενισχύθηκε η εσωτερική ασφάλεια με την αυστηρή εφαρμογή των νόμων και την πάταξη τής ληστοπειρατείας(40).
Η πολιτική,
αργότερα, των Ηγεμόνων Μιλτιάδη Αριστάρχη (1861-1866) και Παυλάκη Μουσούρου
(1867-1873) είχε ολέθριες συνέπειες στη γεωργία, ναυτιλία και εμπόριο. Οι
καταχρήσεις δημοσίου χρήματος, οι σπατάλες κ.λ.π παράλληλα με την επιβολή
σκληρών φόρων από τον Σουλτάνο (εξ αιτίας τής παραπάνω πολιτικής) είχαν σαν
αποτέλεσμα το άδειασμα των δημοσίων ταμείων και τον δανεισμό ακόμα και των
Ηγεμόνων από εμποροχρηματιστές.
Οι αγρότες
πουλούσαν η μικρή αμπελοπαραγωγή τους στους μεσίτες σε εξευτελιστικές τιμές και χρεώνονταν
σε τοκογλύφους δανειστές, προκειμένου να πληρώνουν τούς
αβάσταχτους φόρους που τους είχαν επιβληθεί. Επιπλέον, ισχυροί Δήμαρχοι,
παντοπώλες, σιτοπώλες, εμποροχρηματιστές, Δημοτικοί Σύμβουλοι εξεβίαζαν
οικονομικά και κοινωνικά την πλειοψηφία των αγροτών, για να τους οδηγήσουν πιεστικά
στις κάλπες προς ενίσχυση τής Ηγεμονικής εξουσίας. Καταχρεωμένοι και
καταδιωκόμενοι από τούς δανειστές τους, φτάναν στη χρεωκοπία και στις
κατασχέσεις των κτημάτων τους. Οι συνθήκες αυτές υπέσκαπταν το βιοτικό επίπεδο
των αγροτών που εκτός των άλλων είχαν να αντιμετωπίσουν και την τρομερή
ασθένεια τής λέπρας που έπληξε κυρίως τα κατώτερα οικονομικά στρώματα
τού πληθυσμού (οι ασθενείς διαβιούσαν σε άθλια καταλύματα, κοντά σε Μοναστήρια,
στα οποία ορισμένοι παραχωρούσαν και μέρος τής περιουσίας τους).
Διαφήμιση καπνοβιομηχανίας (π)
|
Η μεγαλύτερη ανάπτυξη της Ηγεμονίας της Σάμου σημειώθηκε κατά το τελευταίο τέταρτο τού 19ου αιώνα με την ανάπτυξη τής αγροτικής παραγωγής, τού εμπορίου και τής βιομηχανίας. Μαζί με την αμπελουργία, που αποτελούσε την κύρια οικονομική δραστηριότητα των κατοίκων, αναπτύχθηκαν η καπνοκαλλιέργεια, η καπνοβιομηχανία και η βυρσοδεψία, σημαντικοί κλάδοι τής τοπικής οικονομίας.
Ο προτελευταίος ηγεμόνας Ανδρέας Κοπάσης, εναντίον του οποίου είχε εκδηλωθεί ένοπλη εξέγερση το 1908, δολοφονήθηκε από τον απεσταλμένο τού μακεδονικού κομιτάτου Σταύρο Μπαρέτη το Μάρτιο τού 1912, ενώ τον Σεπτέμβριο του ιδίου έτους σημειώθηκε επαναστατικό κίνημα με επικεφαλής τον Θεμιστοκλή Σοφούλη.
Σάμιοι επαναστάτες- Μονή Αγίας Ζώνης (ρ)
|
5. ΣΥΝΟΠΤΙΚΑ ΟΙ ΟΙΚΟΝΟΜΙΚΕΣ ΣΥΓΚΥΡΙΕΣ - ΕΜΠΟΡΙΟ ΣΤΗ ΣΑΜΟ ΚΑΤΑ ΤΟΝ 18ο-19ο ΑΙΩΝΑ
Η γεωργία και η κτηνοτροφία ήταν η βασική απασχόληση των Σαμίων ήδη από το β΄μισό τού 16ου αιώνα, όταν στη Σάμο εγκαταστάθηκαντων οι πρώτοι έποικοι. Εμπορικές σχέσεις με ξένους άρχισαν να πραγματοποιούνται σταδιακά με τον πολλαπλασιασμό τού αριθμού των κατοίκων, προκειμένου να εξασφαλίζονται τα χρήματα και τα αναγκαία είδη για την επιβίωση, τα οποία στερούνταν ο πληθυσμός.
| Αργαλιός (σ) |
| Σκάφη στο λιμάνι Καρλοβασίου (τ) |
"Οι συνθήκες τού Κάρλοβιτς το 1699 και τού Πασάροβιτς το 1718 ενίσχυσαν το εμπόριο και τήν ναυτιλία και κατά το 1770-1774 Λάκωνες και Σπετσιώτες ναυπηγοί κατασκευάζουν πλοία με τα οποία οι Σαμιώτες εμπορεύονται με τήν Ευρώπη και τήν Ρωσία"(44).
Ευνοϊκή ήταν
και η συνθήκη Κιουτσούκ Καϊναρτζή τού 1774 μεταξύ Ρωσίας και Οθωμανικής
Αυτοκρατορίας. "Οι Σαμιώτες εμποροναυτικοί
δραστηριοποιήθηκαν στην εμπορία λαδιού και κρασιού, που αποτελούσαν τα βασικά
προϊόντα της Σάμου, αρχικά στα λιμάνια της Οθωμανικής Αυτοκρατορίας (Σμύρνη,
Κωνσταντινούπολη) και στη συνέχεια της Ρωσίας, της Αιγύπτου και γύρω στα τέλη
του 18ου αιώνα της Ευρώπης και κυρίως της Γαλλίας(45).
Από την εμποροναυτική
δραστηριότητα αναδύθηκε ολιγάριθμη αλλά δυναμική ομάδα, η οποία εξαιτίας της
επαφής της με τα μεσογειακά-ευρωπαϊκά λιμάνια προσέλαβε και γονιμοποίησε το
νόημα των ευρωπαϊκών αναστατώσεων, την αξία της αγοράς, του ταξιδιού και
προπάντων των ιδεών του Διαφωτισμού και της Γαλλικής Επανάστασης" (46).
Οινοποιείο στη Σάμο (υ)
|
Στις αρχές τού
18ου αιώνα και συγκεκριμένα στα 1702 η Σάμος παρήγαγε 3.000 βαρέλια κρασιού
(από 50 οκάδες το καθένα) και 800 μέχρι 900 βαρέλια λάδι (τής ιδίας
χωρητικότητας). Τα δύο αυτά είδη στέλνονταν στη Χίο, Ρόδο και Ναύπλιο. Εκτός
αυτών, πολλές χιλιάδες λεμόνια και πορτοκάλια στέλνονταν στον Κολοφώνα, τα
οποία αγόραζαν έμποροι και τα μεταπωλούσαν σε διάφορες πόλεις τής Μικράς Ασίας.
Λεπτό μετάξι έφτανε στη Χίο το οποίο αγόραζαν γενουάτες έμποροι και
μεταπωλούσαν στη Γένουα. Περίπου 200 στατήρες εκλεκτού μελιού εξάγονταν
ετησίως στην Κωνσταντινούπολη και 100 στατήρες άριστου κεριού στη Σμύρνη. Τέλος
μεγάλες ποσότητες ξυλείας μεταφέρονταν στην Πάτμο, απ΄όπου έμποροι την
διακινούσαν αλλού.
Οι εμπορικές
συναλλαγές με την Ευρώπη ήταν μηδαμινές έως ελάχιστες. Εμποροι Ιταλοί έφταναν
ενίοτε στη Σάμο και αγόραζαν πίσσα και βελανίδια. Και η μεν πίσσα (300 με 400
στατήρες) στέλνονταν στη Γένουα και στην Βενετία για τις ανάγκες τών ναυστάθμων
τών δύο πόλεων, τα δε βελανίδια, αλεσμένα, στέλνονταν στην Βενετία και Ανκόνα, στα εκεί βυρσοδεψεία.
Δυτική όψη σιταποθήκης στο Μεσαίο Καρλόβασι -Αποτύπωση Ι.Παραφέστα |
![]() |
| Νότια όψη της σιταποθήκης- Ι.Π. |
![]() |
| Σιταποθήκη στο Μεσαίο Καρλόβασι 19ουαιώνα |
Το σιτάρι στη Σάμο παρ΄όλο που ήταν λιγοστό,
και οι σαμιώτες παρασκεύαζαν το ψωμί τους από κριθάρι και κεχρί εξάγονταν
σχεδόν ετησίως στη Γαλλία σε ποσότητα 3 φορτωμάτων (από 900 κιλά κάθε φόρτωμα).
Στην Γαλλία επίσης προορίζονταν ετήσιο φόρτωμα ερίων και τυρού σε άρμη που
μεταφέρονταν μέσα σε ασκούς. Μερικές φορές ξένοι έμποροι προμηθεύονταν από τη
Σάμο λευκά, ξερά σύκα, τα οποία στέλνονταν κυρίως στη Σμύρνη και στην
Κωνσταντινούπολη. Τέλος γινόταν εξαγωγή μεγάλης ποσότητας σκαμμωνέας (
Σκαμώνιον- "Convolvoulus syriacous") (47) που χρησιμοποιούνταν για φαρμακευτικά σκευάσματα. Το
προϊόν ήταν απαλλαγμένο δασμού (σε αντίθεση με τα περισσότερα παραπάνω προϊόντα
που αναφέραμε) και καταναλώνονταν στις αγορές τής Ανατολής.
"Στο πρώτο
μισό τού 18ου αιώνα προσπάθησαν οι Κοτσαμπάσηδες να στρέψουν τήν αγροτική
καλλιέργεια σε μονοκαλλιέργειες, καπνού, αμπελιών ή ελιάς αποβλέποντας στήν
εμπορία τών προϊόντων, από τήν οποία πλούτιζαν αυτοί καθώς και πολλοί Εβραίοι
και Αρμένιοι τοκογλύφοι και μεταπράτες που χρηματοδοτούσαν και τούς ισχυρούς
τής Πύλης. Οι Κοτσαμπάσηδες και όσοι παρασιτούσαν γύρω από τόν Αγά αποτέλεσαν
τήν κυρίαρχη τάξη... οργανώθηκαν στο κόμμα τών
"Καλλικατζάρων"(σύμμαχο κόμμα τής τουρκικής εξουσίας).. ενάντια στο
κόμμα τών "Καρμανιόλων" που συγκέντρωσε μετά το ξέσπασμα τής γαλλικής
επανάστασης το 1789, τον εξαθλιωμένο αγροτικό πληθυσμό και τούς
εμποροκαπετανέους, κόμμα επαναστατικό, λαϊκό, φιλελεύθερο, δημοκρατικό που το
1821 οδήγησε τον λαό τής Σάμου στον εθνικοαπελευθερωτικό αγώνα"(48).
Με την λήξη τού
18ου αιώνα οι Σάμιοι ασχολήθηκαν με ένα νέο προϊόν, την σταφίδα. Μέχρι εκείνη
την εποχή τα σταφύλια εχρησίμευαν μόνο για την παραγωγή οίνου, ο οποίος ανέκαθεν
ήταν απαλλαγμένος κάθε δασμού.. Οταν η Τουρκική Διοίκηση εκτίμησε οτι παραγόταν
μεγάλη ποσότητα κρασιού, αποφάσισε να επιβάλει φόρο. Εκείνη λοιπόν την χρονιά
σταμάτησε η οινοπαραγωγή και οι αγρότες στράφηκαν στην παρασκευή σταφίδας στην
οποία εμυήθηκαν από άνδρες που είρθαν από τα Βρύουλα της Μικράς Ασίας. Η
Κωνσταντινούπολη έκτοτε εγκατέλειψε κάθε προσπάθεια επιβολής φόρου. Πρώτα δε
λιμάνια όπου εστάλησαν οι σαμιακές σταφίδες ήταν η Βενετία και η Γένουα.
![]() |
Ελαιοτριβείο στον Αγιο Κωνσταντίνο
|
Κατά τον 19ο
αιώνα οι Γαλλο-Ισπανικοί πόλεμοι έδωσαν την αφορμή στους Σαμίους να συνάψουν
εμπορικές σχέσεις με την Ισπανία. Τολμηροί πλοίαρχοι διασπώντας τον κλειό
πολυάριθμων πολεμικών πλοίων που απέκλειαν τα ισπανικά παράλια, αποβίβαζαν εκεί
ανθοσμία οίνο και άλλα σαμιακά προϊόντα, αποκομίζοντας υψηλά κέρδη.
Λίγο αργότερα άρχισαν να στέλνουν πολλά φορτία ανθοσμίου και στην Αμερική. Αλλά η μικρή περιεκτικότητα στο κρασί οινοπνεύματος (λόγω άγνοιας) που θα εξασφάλιζε τη διατήρησή του πέραν τού Ισημερινού, καθώς και η νοθεία με προσθήκη νερού από κάποιους κερδοσκόπους, υποβάθμιζε την ποιότητά του, με συνέπεα τη διακοπή τού εμπορίου με την Αμερική.
Λίγο αργότερα άρχισαν να στέλνουν πολλά φορτία ανθοσμίου και στην Αμερική. Αλλά η μικρή περιεκτικότητα στο κρασί οινοπνεύματος (λόγω άγνοιας) που θα εξασφάλιζε τη διατήρησή του πέραν τού Ισημερινού, καθώς και η νοθεία με προσθήκη νερού από κάποιους κερδοσκόπους, υποβάθμιζε την ποιότητά του, με συνέπεα τη διακοπή τού εμπορίου με την Αμερική.
Εξάγονταν
παλιότερα και μεγάλη ποσότητα μετάξης στην Ιταλία και ιδίως στα Μεδιόλανα για
την χρήση μεταξοκλωστικών εργαστηρίων τής Λομβαρδίας. Ασθένεια όμως των
μεταξοσκωλήκων (προ τού 1886) κατέστρεψε εντελώς το είδος αυτό. Με την
εισαγωγή ωστόσο νέων υγειών σπόρων επανήλθε αμέσως αυτή η παραγωγική
δραστηριότητα.
Αλλο τής Σάμου
προϊόν ήταν το λάδι. Παρά την μείωση τής τιμής του εξάγονταν ετησίως σημαντική
ποσότητα σε Τουρκία, Ρουμανία και Ρωσία.
Ικανή ποσότητα κερατίων (χαρουπιών) επίσης αποστέλλονταν στη Γένουα κυρίως και στη Σαββατία, απ΄όπου το προϊόν διανέμετο σε πόλεις τής μεσημβρινής Ιταλίας για την εκτροφή των ζώων.
Ικανή ποσότητα κερατίων (χαρουπιών) επίσης αποστέλλονταν στη Γένουα κυρίως και στη Σαββατία, απ΄όπου το προϊόν διανέμετο σε πόλεις τής μεσημβρινής Ιταλίας για την εκτροφή των ζώων.
![]() |
Ταμπάκικο στο Καρλόβασι (φ)
|
Κι άλλα
προϊόντα εξάγονται όπως: Αμύγδαλα, γλυκάνισος, μέλι, μετάξι, ξυλάνθρακες,
πέδιλα και σανδάλια, ρακή, σαπούνι, σούμα, σταφύλια επιτραπέζια, τρίχινα υφάσματα, κρεμμύδια, σύκα.(49)
Κατάστημα υποδημάτων (χ)
|
Σε απογραφή τού 1828 ο Άγιος Κωνσταντίνος εμφανίζεται να έχει 254 κατοίκους. Είχε ήδη επεκταθεί ως παραλιακός οικισμός με την εγκατάσταση κατ΄αρχάς αποθηκών κρασιού (ταβέρνες) και αργότερα με οικήματα και σπίτια που κτίστηκαν κατά μήκος τής παραλίας (ως επί το πλείστον διώροφα, με προεξέχοντα "σαχνισί" στον όροφο κατά την ανατολίτικη-μικρασιατική επίδραση).
Έναν αιώνα αργότερα (περί το 1920) ο πληθυσμός ξεπέρασε τούς εξακόσιους ως αποτέλεσμα τής ανάπτυξης τής περιοχής λόγω βασικά τής οινοπαραγωγής και τής εγκατάστασης εκεί κατοίκων κυρίως των "Βαλεοντατών". Ξεπέρασε δε τούς οκτακόσιους κατοίκους στο τέλος τής ίδιας δεκαετίας, ανάμεσα στους οποίους πρέπει να συνυπολογισθούν οι μικρασιάτες πρόσφυγες. Οι "ταβέρνες" των Βαλεοντατών, των "Μαργαριτών", τού Αγίου Κωνσταντίνου και τού Κάμπου Βουρλιωτών επιβεβαιώνουν την ενασχόληση των κατοίκων με την οινοποιϊα, αλλά και οι 4 νερόμυλοι των Βαλεοντάτων και οι δύο τού Αγίου Κωνσταντίνου μαρτυρούν την παραγωγή σιτηρών επίσης στην ίδια περιοχή.
6. ΕΓΚΑΤΑΛΕΙΨΗ ΤΩΝ ΔΥΟ ΟΙΚΙΣΜΩΝ ΣΤΑ ΤΕΛΗ 19ου -ΑΡΧΕΣ 20ου ΑΙΩΝΑ
Το 1869 οι Μαργαρίτες είχαν 30 σπίτια, ένα ναϊδιο, 53 άνδρες (33 γεωργοί, 3
έμποροι, 1 ιερέας) και 54 γυναίκες = 107 άτομα, ενώ οι Βαλεοντάτες
είχαν 35 σπίτια με ένα ναϊδιο, 72 άνδρες (48 γεωργοί, 1 κτηματία, 8
βιομηχάνους, 1 ιερέα) και 75 γυναίκες= 147 άτομα(50).
Το 1886, οι Μαργαρίτιδες είχαν 26
σπίτια και 104 κατοίκους.
Περί
το 1886 οι Βαλεοντάτες διέθεταν 26 σπίτια και είχαν 106 κατοίκους.
Την περίοδο αυτή, "λόγω τής θερμότητος τού μέρους και τής κακής ποιότητας
τού εδάφους, ο πληθυσμός αραιώνει από χρονιά σε χρονιά και το κώμιον ερημώνεται
όπως συνέβη και στις άλλοτε υπάρχουσες εκεί κοντά συνοικίες Χατζηγεώργηδες και Σταματάκηδες, που είναι τώρα
ερημωμένα"(51).
Ο
οικισμός Μαργαρίτες άρχισε να εγκαταλείπεται από τούς κατοίκους του
περί το 1920 (σύμφωνα με μαρτυρίες κατοίκων τών Μανωλατών)(52). Φαίνεται πως ο μεγάλος σεισμός (53) έντασης 6,8 τής κλίμακας Ρίχτερ που έπληξε την Σάμο
στις 11 Αυγούστου 1904 (κατά τον οποίο καταστράφηκαν ολοσχερώς 540 σπίτια στη Σάμο)
δεν συνέβαλε (άμεσα τουλάχιστον) στην εγκατάλειψη τού οικισμού, εφ΄όσον το 1920
κατοικούνταν ακόμα 30 σπίτια, υπήρχε σχολείο και 3 καφενεία. Μεγάλη
συρρίκνωση μαρτυρείται περί το 1956, όταν κατοικούσαν εκεί πλέον, μόνον
4-5 οικογένειες(54). (Τελευταία κάτοικος των Μαργαριτών ήταν η Ειρήνη
Τσακανιά).
Στο
διάστημα αυτό λοιπόν, των 25-30 χρόνων (1920-1957), εκκενώθηκε σταδιακά ο οικισμός κι οι κάτοικοί του εγκαθίσταντο κυρίως στο χωριό
"Μανωλάτες" (στις απογραφές
τού 2001 και τού 2011 στις Βαλεοντάτες καταγράφονται αντίστοιχα 15
κάτοικοι, ενώ στις Μαργαρίτες κανένας)(55).
Υποστηρίζεται ότι οι Μαργαρίτες ήταν οικονομικά σημαντικότερος οικισμός από
τις Βαλεοντάτες, με πιο ευκατάστατο πληθυσμό. Ισως να ήταν
έτσι, αν και το μέγεθος τού οικισμού των Βαλεοντατών, ο μεγαλύτερος αριθμός
σπιτιών, η ύπαρξη ενός κτηματία και 8 "βιομηχάνων" υποδηλώνει μάλλον το
αντίθετο. Αλλωστε πολύ νωρίτερα απ΄ ότι οι κάτοικοι τών Μαργαριτών
άρχισαν τη μετοίκησή τους, κυρίως στον Κάτω Αγιο Κωνσταντίνο, κάτι που δείχνει ίσως την οικονομική
ευμάρεια ορισμένων τουλάχιστον από αυτούς με την επέκταση των δραστηριοτήτων
τους στους θαλάσσιους δρόμους.
![]() |
| Σαμιώτες μετανάστες στην Αμερική |
Ο οικισμός τού Αγίου Κωνσταντίνου αναπτύχθηκε πλέον και παραθαλάσσια. Κατά το 1869 περιελάμβανε: 70 σπίτια, 1 ναό, 2 Μετόχια, 1 σχολείο, 179 άρρενες (65 γεωργούς, 7 εμπόρους, 12 ναύτες, 12 βιομηχάνους, 1 διδάσκαλο, 2 ιερείς) και 185 γυναίκες=364. Αργότερα παρατηρήθηκε μετανάστευση προς την Αμερική.
Στο μεταξύ και ο ορεινός οικισμός Μανωλατών αναπτύσσεται περί το 1795 από τη μετοίκιση εκεί, των κατοίκων αρχικά των οικογενειακών μικροεγκαταστάσεων τής ευρύτερης περιοχής και τού Καστανόλογγου, αργότερα δε των κατοίκων τού οικισμού (κυρίως) των Μαργαριτών.
7. ΡΥΜΟΤΟΜΙΑ - ΑΡΧΙΤΕΚΤΟΝΙΚΗ ΣΤΙΣ ΒΑΛΕΟΝΤΑΔΕΣ ΚΑΙ ΜΑΡΓΑΡΙΤΕΣ
7.1. Η ΑΡΧΙΤΕΚΤΟΝΙΚΗ ΚΑΙ Η ΟΙΚΟΔΟΜΙΚΗ ΠΑΡΆΔΟΣΗ ΤΗΣ ΜΕΤΑΒΥΖΑΝΤΙΝΗΣ ΠΕΡΙΟΔΟΥ ΣΤΗΝ ΤΟΥΡΚΟΚΡΑΤΟΥΜΕΝΗ ΣΑΜΟ ΔΙΑΙΩΝΙΣΕ ΤΟΝ ΑΠΛΟΥΣΤΑΤΟ ΤΥΠΟ ΒΥΖΑΝΤΙΝΟΥ ΣΠΙΤΙΟΥ.
Τα
κτίσματα από τον 16ο ως τον 18ο αιώνα εμφανίζουν τυπικά βυζαντινό χαρακτήρα.
H διαιώνιση τής τεχνογνωσίας των μαστόρων και το γεγονός οτι οι Τούρκοι
δεν επέβαλαν τη δική τους αρχιτεκτονική παράδοση είχαν σαν αποτέλεσμα τη
συνέχιση των γνωστών αρχιτεκτονικών τύπων και συνηθειών. Η συνέχεια τού "οσπιτίου" τών
βυζαντινών, διακρίνεται και στην αρχιτεκτονική των περιοχών που παρέμειναν εκτός
των ελληνικών συνόρων ως τις αρχές τού 20ου αιώνα (όπως συνέβη με τη Σάμο) και
διατήρησαν βασικά την τοπική τους αρχιτεκτονική έκφραση και μέσα στον 19ο
αιώνα.
Στις
τουρκοκρατούμενες περιοχές, στη φυσιογνωμία τής κατοικίας φαίνεται
η τεράστια δύναμη τής παράδοσης. Οι κάτοικοι απασχολούνται στον πρωτογενή
κυρίως τομέα και ακολουθούν μια ζωή κλειστή, λιτή με πατροπαράδοτες κοινωνικές
δομές. Σπανίως πρωτοτυπούν τυπολογικά. Συνήθως επιλέγουν κάποιο από τούς
παλιούς γνωστούς τύπους και τον προσαρμόζουν στις καινούργιες ανάγκες
τους.
Στη
Σάμο, λόγω τής ολικής σχεδόν ερήμωσης τού νησιού (το 1467 μ.Χ.) και τής
επανοίκησής του που άρχισε περί το 1550/60 μ.Χ., οι οικιστές εκείνοι που δεν προέρχονταν από
νησιωτικές περιοχές αναπαρήγαγαν κατ΄αρχάς τα παλιά -προ
τού 15ου αιώνα (οικεία και στους ίδιους)- πρότυπα στην απλούστερη μορφή
τους, εγκολπώνοντας όμως και το νησιωτικό δώμα που κυριαρχούσε στο Αιγαίο. Την
υιοθέτηση αυτής τής λιτής και συνήθως ευτελούς κατασκευής, απ΄όπου απουσίαζε
οποιοσδήποτε διάκοσμος, υπαγόρευσαν κυρίως η οικονομική δυσχέρεια των οικιστών
και η ανασφάλεια που προξενούσαν σε αυτούς οι πειρατικές και άλλες εχθρικές
επιδρομές.
Η απλοϊκή αυτή
μορφή αποτελεί τον βυζαντινό τύπο τού
λιθόκτιστου, δωματοσκέπαστου σπιτιού τού Αιγαίου, όπως αυτό διαμόρφωσε τοπικά
τα χαρακτηριστικά του και επιβίωσε μέχρι και τα μέσα τού 19ου
αιώνα, με μικρή σχετική "εξέλιξη" (παρά την δημογραφική άνθηση) που
αφορούσε κυρίως τήν διαίρεση των χώρων και την αλλαγή χρήσης τους, ενίοτε και
με κάποιες μικρές προσθήκες, εκεί όπου δεν υπήρχε στενότητα χώρου.
Αυτό ωφείλεται στις ιστορικές συγκυρίες, στην συνεχιζόμενη ανασφάλεια,
στην ένδεια τής πλειοψηφίας των κατοίκων που ζούσαν από την ύπαιθρο.
Οι
οικιστές που συνέχισαν να εγκαθίστανται στή Σάμο (τον 18ο αιώνα) μετέφεραν και δικές
τους οικοδομικές συνήθειες, βασικά τής στέγασης των σπιτιών με κεραμοσκεπές που
τελικά επικράτησαν στο νησί, χωρίς εξαιρέσεις. Ιδιαίτερα κατά τα χρόνια
τής Ηγεμονίας, από το 1833 και κυρίως στα μέσα τού 19ου αιώνα,
κορυφώθηκαν οι αντικαταστάσεις τών δωμάτων από ξύλινες κεραμοσκεπείς στέγες.
.Παράλληλα ο,τι χτίζονταν εκ βάθρων ήταν με κεραμοσκεπές, συχνά και με
νέα μορφολογικά στοιχεία (σαχνισιά διφόρων τύπων, χαγιάτια κ.λ.π.) που
"διανθίζουν" τον ορθογωνισμένο όγκο με ποικιλία λύσεων. Ωστόσο και
στις αρχές ακόμα τού 21ου αιώνα διατηρούνταν σε τμήματα χωριών κάποια
αμιγή σύνολα δωματοσκέπαστων σπιτιών. Σήμερα, διασώζονται ακόμα αρκετά
δωματοσκέπαστα σπίτια διάσπαρτα στους οικισμούς καθώς και πολλά
δωματοσκέπαστα που αντικαταστάθηκαν με στέγες.
Οι επικρατέστεροι αρχιτεκτονικοί τύποι που κληρονομήθηκαν από τα βυζαντινά χρόνια στη Σάμο ήταν :
Τα
πρωτόγονα "καλύβια" από κλαδιά (που ενίοτε τα επαλείφανε με
λάσπη). Τέτοιος συνοικισμός ήταν στην πρωταρχική του φάση (με τον
εποικισμό) το "Μεσαίο Καρλόβασι". Η ονομασία του: "Καλύβια"
διασώθηκε ανεπίσημα μέχρι τους σύγχρονους χρόνους και επίσημα σε έγγραφα τού
18ου-19ου αιώνα. Ο τύπος αυτός φυσικά δεν επιβίωσε.
Το
"ισόγειο (οσπίτιν χαμόγεων ή χαμαίγεων). ή και
ανωκάτωγο (δίπατον ή ανωγοκάτωγον ή ανωγεωκάτωγον ή άνω κάτω) μονόχωρο κυβόσχημο.
Το "ισόγειο
ή διώροφο ( ανωγοκατώγειο) μονόχωρο στενομέτωπο ή πλατυμέτωπο".
Με
αυλές ή χωρίς αυλές και παράσπιτα (προσκτίσματα) ολοι οι τύποι σπιτιών
προσαρμόζονταν σ' ένα σταδιακά πυκνοδομημένο οικιστικό ιστό, με όψεις σε
στενούς δρόμους (1,50μ -4,00μ περίπου).
Η "πυργόμορφη"
κατοικία που προέκυψε για αμυντικούς λόγους, από τον στρατιωτικό βυζαντινό
πύργο ή φρυκτωρία (φρυκτώριο). Ηταν μικρού εμβαδού, τετράγωνης ή ορθογωνικής
κάτοψης και πολυώροφη. Ήταν ατοικίες τιμαριούχων (Πύργος Σαρακίνη- Ηραίο-16ος)
και προυχόντων ή πλουσίων (3 πυργόσπιτα στο "Βαθύ" τού 1717 και τού 1749) καθώς και 2 πυργόσπιτα στη Χώρα με χρονολόγηση
τού ενός εξ΄αυτών στα 1749) (56).
|
|
7.2. OI ΔΥΟ ΟΙΚΙΣΜΟΙ
Στις Μαργαρίτες, γύρω και μετά τον ναό τού Αγίου
Γεωργίου υπήρχαν (κατά το 1996 που επισκεφθήκαμε την τοποθεσία αυτή)
ερείπια λιθόκτιστων κατοικιών, με την κάπνα των εστιών τους
αποτυπωμένη πάνω στους τοίχους, χνάρια αλλοτινής ζωής και κατοίκησης. Πολλές
άλλες επίσης, πνιγμένες μέσα στη βλάστηση που κατακυρίευσε τον
εγκαταλελειμμένο τόπο, μόλις διακρίνονταν. Εικόνα ακριβέστερη έχουμε στον
οικισμό "Βαλεοντάτες" όπου σώθηκαν αρκετά σπίτια,
αποκαταστάθηκαν και κηρύχθηκαν διατηρητέα. Αυτό μας επιτρέπει να έχουμε μια
ιδέα και για τον οικισμό "Μαργαρίτες" με δεδομένο ότι αναπτύχθηκε μέσα στον 18ο αιώνα, όπως και οι "Βαλεοντάτες",
επαναλαμβάνοντας κοινά τυπολογικά και κατασκευαστικά στοιχεία.
1880- Εποψη
Βαλεοντάτων από
Αγ.Τριάδα-(ψ)
|
Απ΄όσα
γνωρίζουμε γιά τούς μικρούς οικισμούς τής Σάμου, κάποια ιδιωτικού ή και
κοινοτικού χαρακτήρα κτίσματα ( αποθήκες, εργαστήρια, σταφυλοδόχοι, πλυσταριά, πατητήρια, μύλοι, κοιμητήρια), άμεσα συνδεδεμένα με τις
ανάγκες τών οικιστών, βρίσκονταν συνήθως στα όρια τού οικισμού
αλλά οργανικά δεμένα με την ζωή των κατοίκων.
Στις "Μαργαρίτες"
η ενοριακή εκκλησία βρίσκεται (ως είθισται) μέσα στον οικισμό. Ισως εκεί να
υπήρχε ένας πιο ανοιχτός χώρος για τις θρησκευτικές εκδηλώσεις των κατοίκων, τα
πανηγύρια και τις κοινοτικές συγκεντρώσεις. Πάνω από τον ναό τού "Αγίου
Γεωργίου" ήταν το νεκροταφείο,
απέναντι δε υπήρχε βρύση και πλυσταριό με ολόγυρα γούρνες. Κάτω ακριβώς από τον "Αγιο
Γεώργιο", μέσα στον οικισμό, υπήρχε σημαντικό κτίριο-"ταβέρνα",
με πατητήρι και πολήμνιο χωριτικότητας 9 φορτωμάτων μούστου. Ανήκε στον παππού τής Αγάπης Αγγελή, τον παπά - Γιώργη Διολέτη. Ηταν
κάτοικος "Μαργαριτών" που εγκατέλειψε τον οικισμό το 1922 κι
εγκαταστάθηκε στις "Μανωλάτες" ως Ιερέας. Μετά το θάνατό του
τα οστά του μεταφέρθηκαν μέσα στον ναό τού "Αγ. Γεωργίου", στον
οποίο πιθανότατα υπήρξε ιερέας. Με την "ταβέρνα" ασχολήθηκε κι ο γιός του (πατέρας
τής Αγάπης Αγγελή). Άλλα κτίσματα που θα μπορούσαν να ανασυστήσουν την εικόνα τού οικισμού, είναι δύσκολο να εντοπισθούν, λόγω τής
πυκνής βλάστησης που έχει καλύψει τις "Μαργαρίτες".
Βασικό
κοινό χαρακτηριστικό των δύο οικισμών ήταν η "δυναμική" ανάπτυξή
τους, προκειμένου να εξοικονομηθεί χώρος λόγω τού αναγλύφου τής περιοχής αλλά
και τού κοινού αισθήματος ανασφάλειας που είχανε οι κάτοικοι. Οι κατοικίες
ακολουθούν αναγκαστικά την αμφιθεατρική διάταξη, σύμφωνα με το πρανές τού
εδάφους.
Με πλάτη πίσω τους το βουνό χτίστηκαν παράλληλα ή εγκάρσια στο πρανές, με την κύρια όψη τους να προτάσσεται προς στο δρόμο, με τα διπλά (συνηθέστερα) παράθυρα μπροστά, να αγναντεύουν τον υπόλοιπο οικισμό και το παλιό Κάστρο τού Λαζάρου. Τα πιο παλιά σπίτια, κρίνοντας από τις Βαλεοντάτες, ήταν απλούστατα, μικρού κυρίως μεγέθους ισόγεια, σχεδόν "κυβόσχημα". ή και με χαμηλά κατώγεια, με περιορισμένων διαστάσεων προσόψεις και με φανερά τονισμένη την ανθρώπινη κλίμακα.
![]() |
| Σύγκλιση δρομίσκων (ω) |
Δρομίσκος (ω)
|
Με πλάτη πίσω τους το βουνό χτίστηκαν παράλληλα ή εγκάρσια στο πρανές, με την κύρια όψη τους να προτάσσεται προς στο δρόμο, με τα διπλά (συνηθέστερα) παράθυρα μπροστά, να αγναντεύουν τον υπόλοιπο οικισμό και το παλιό Κάστρο τού Λαζάρου. Τα πιο παλιά σπίτια, κρίνοντας από τις Βαλεοντάτες, ήταν απλούστατα, μικρού κυρίως μεγέθους ισόγεια, σχεδόν "κυβόσχημα". ή και με χαμηλά κατώγεια, με περιορισμένων διαστάσεων προσόψεις και με φανερά τονισμένη την ανθρώπινη κλίμακα.
| Στα ισόγεια σπίτια η είσοδος τού σπιτιού είναι στο κέντρο τής όψης προς τον δρόμο, με ένα παράθυρο δίπλα στην πόρτα. Στην περίπτωση των πλατυμέτωπων σπιτιών και με εγκάρσια τοποθέτηση στο πρανές η είσοδος βρίσκεται στο κέντρο τής μιας από τις δύο μεγάλες όψεις και έχει ένα ή δύο συμμετρικά παράθυρα (στη στενή όψη προς τον δρόμο). |
Στα
"ανωκάτωγα" το σπίτι είναι στον όροφο και η πρόσβαση
σ΄αυτό γινόταν από εξωτερική πέτρινη σκάλα με πλατύσκαλο που βρισκόταν στο
κέντρο τής κυρίας όψης ή και στην πλαϊνή όπως και στα ισόγεια. Σε
κάποιες περιπτώσεις επέκτασης τού ισογείου το πλατύσκαλο γίνεται ένα
μεγαλύτερο δώμα ("ηλιακό"), πάνω από την επέκταση, εκεί
μάλιστα όπου η αυλή δεν ήταν αρκετά μεγάλη για να καλύψει τις
ανάγκες τής αγροτικής ζωής. Στο "κατώϊ" βρίσκεται ο
βοηθητικός χώρος για αποθήκευση, για κάποιες αγροτικές εργασίες ή για
σταύλιση, αν δεν διατίθετο άλλος χώρος.
|
| Τα
σπίτια βρίσκονται σε πολύ μικρές αποστάσεις μεταξύ τους. Άλλα παρατάσσονται το
ένα δίπλα στο άλλο με μεσοτοιχίες ("μουστερέϊκα" σπίτια). Στο
ελάχιστο περίσσευμα τής αυλής στριμώχνεται κάποιο μικρό παράσπιτο ή ο φούρνος
για το ψωμί. Σε κάποιες περιπτώσεις σπιτιών που τοποθετήθηκαν στην
απέναντι πλευρά τού δρόμου με θέα προς το βουνό, αυτά είναι ισόγεια
από την μεριά τού δρόμου, με άμεση πρόσβαση στο εσωτερικό, και διώροφα από την αντίθετη
πλευρά, όπου βρίσκεται το "κατώϊ" για τις αγροτικές ανάγκες. Η
διάταξη αυτή που δημιουργεί πρόσθετα κατασκευαστικά προβλήματα
καταδεικνύει το πρόβλημα τής στενότητας τού χώρου και την προσπάθεια εύρεσης
κάποιας λύσης. Αλλά και τα διαπλεκόμενα στενά δρομάκια προσπέλασης, συχνά
κλιμακωτά, εκφράζουν τη γενικότερη αίσθηση οικονομίας τού χώρου που
κυριαρχούσε εκεί, όπως άλλωστε συμβαίνει στην οικιστική οργάνωση όλων τών νησιών τού
Αιγαίου. Οι "Βαλεοντάτες" σχηματίζουν χωροταξικά δύο γειτονιές που τις χωρίζει το ρέμα, κι από το 1959 και μετά, και η επαρχιακή οδός Αγίου Κωνσταντίνου - Μανωλατών. |
|
||||
Στην
ανατολική γειτονιά τού οικισμού, στην ανατολική δηλαδή όχθη τού ρέματος,
βρίσκεται και ο ενοριακός ναός των "Βαλεοντατών". Οκτώ-εννέα μικρά,
μονόχωρα σπίτια και αγροτόσπιτα συγκεντρώνονται γύρω από τον ναό. Ενα-δυό
κατοικούνται, άλλα χρησιμεύουν σαν αγροτικές αποθήκες και άλλα είναι ερειπωμένα
ή και πνιγμένα στη βάστηση.
Είναι ισόγεια, ορθογώνια και περιορισμένου ύψους.
Φέρουν ως δύο παράθυρα με ξύλινο απλούστατο "μάντωμα" (μαντωσιά,
κάσωμα). Στο πανωκάσι και κατωκάσι υπάρχει μακρύ ξύλινο
"χατήλι" (χατηλιά, χατηλωσιά), από κορμό δέντρου, που
υποστηρίζει τις ζώνες αυτές τής λιθοδομής. Σε κάποιες περιπτώσεις
επεκτείνεται πέρα των ανοιγμάτων και προχωρά σε αρκετή απόσταση μέσα στον
τοίχο, ενίοτε φαίνεται σχεδόν να τον περιβάλλει.
| Παράσπιτο σταυλισμού |
Λεπτομέρεια
λιθοδομής-Φ.2018
|
Σπίτι βόρεια
τού ναού-Φ.2018
|
Οι
τοίχοι είναι λασπόχτιστοι, από αργούς λίθους ή και ξηρολιθοδομές .Ανάμεσά τους
μπήκαν κάποιες μεγαλύτερες, ημιλαξευμένες πέτρες, άλλες σχιστολιθικές και
πολλές μικρότερες ατσαλόπετρες, Υπάρχει πανσπερμία χρωμάτων, το μόνο πράγμα
που "διασκεδάζει" τις αδιάφορες όψεις και ανοίγει έναν παιχνιδιάρικο
διάλογο, σε επιφάνειες που γίνονται ξαφνικά πολύ ενδιαφέρουσες. Είναι στο χρώμα
τής βαθιάς ώχρας, στις αποχρώσεις τού γκρι, τού καφέ και λευκές.
Αλλού κυριαρχεί
το γκρι με έντονες αντιθέσεις τού λευκού. Η υφή πολλών απ΄αυτές είναι με
φυσικό τρόπο εξομαλυσμένη, κάτι που μας βεβαιώνει οτι το ρέμα δίπλα τους, ήταν
κι αυτό πηγή απ΄όπου προμηθεύτηκαν οι οικιστές τη συγκεκριμένη πρώτη ύλη
γιά το χτίσιμο τών σπιτιών τους. Ισως να ήταν κι ένας από τούς
λόγους τής εγκατάστασής τους στην περιορισμένη αυτή τοποθεσία, εξασφαλίζοντας
συγχρόνως και λίγη γη γιά τις καλλιέργειές τους, σε μια δύσκολη
πλαγιά με στενές και απότομες "πεζούλες".
Οι τοίχοι τού σπιτιού (Α) κάτω από τη στέγη (στην απόλιξή τους) φέρουν μια σειρά από προεξέχουσες πλάκες σχιστόλιθων που "τρέχει" ολόγυρα στο κτίσμα, υπό μορφή γείσου. Αυτό θα το βρούμε και στα σπίτια με δώματα στο ύψος που ξεκινούσε το "σαμάρι", το χαμηλό στηθαίο τού δώματος. Βοηθούσε στην καλύτερη ροή των βρόχινων νερών γιά την προστασία των τοίχων, ενώ αποτελούσε κι ένα ελάχιστο "κοσμίδι" στην ασκητική μορφή των δωματοσκέπαστων σπιτιών.
| Σπίτι Α-Η παραστιά-Φ.2018 |
Ερειπωμένο
σπίτι Α- Φ.201
|
| Σπίτι (Α) & αυλότοιχος-Φ.2018 |
Στο εσωτερικό του, το μικρό σπίτι έχει την "παραστιά" (εστία) στη Ν.Δ.. γωνία του. Είναι ένα τυπικό σαμιακό γωνιακό τζάκι με λίθινο ημικυκλικό καμαρικό ("καμαρκό") και πάνω από αυτό η "πουλίτζα" (θυρίδα μέσα στον τοίχο). Πιό ψηλά απ΄την "πουλίτζα" υπήρχε ξύλινο ράφι,το "τζακόραφο", που διατρέχει τον νότιο τοίχο μέχρι το ντουλάπι-πιατοθήκη..
Υπάρχουν
δύο παράθυρα, ένα στη δυτική όψη, δίπλα στο τζάκι κι ένα μικρότερο στον
ανατολικό τοίχο, απέναντι ακριβώς απ΄αυτό. Εκεί υπάρχει ο νεροχύτης, μέσα στο
πάχος τού τοίχου. Το "κούτελο" τού νεροχύτη σχηματίζεται από μιά
φαρδιά ξύλινη σανίδα,στερεωμένη στον τοίχο από τις δύο πλευρές. Στον νότιο
τοίχο, δίπλα στον νεροχύτη, υπάρχει ακόμα το λείψανο τής παραδοσιακής
πιατοθήκης-ντουλάπι (συνήθως υπήρχε εκεί και σταμνοθήκη).
Το
σπίτι στο εσωτερικό του ήταν μονόχωρο και κάλυπτε όλες τις ανάγκες των ενοίκων
του, το μαγείρεμα, τη διημέρευση, τον ύπνο. Ηταν σοβαντισμένο με λεπτή στρώση
σοβά από ασβεστοκονίαμα ανακατεμένο με άχυρο (χρησιμοποιούνταν και τρίχες
γίδας), για μεγαλύτερη αντοχή και αποφυγή συστολής ξηράνσεως. Το ασβεστώνανε
συχνά, λόγω τής κάπνας τού τζακιού κι έτσι δημιουργούνταν αλλεπάλληλες στρώσεις
που με τον καιρό αποκολλούνταν μόνες τους. Τα χρώματα που χρησιμοποιούσαν
συχνά ήταν το λουλακί και το λευκό, αλλά και η κίτρινη ώχρα.
Εξωτερικά επιχρίστηκε στην πορεία με ασβεστοκονίαμα, ενώ ο νότιος τοίχος διατηρήθηκε με εμφανή την λιθοδομή του, και με πολλές λευκές πέτρες που διανθίζουν την όψη.
Το (Α) σπίτι
είχε μικρή αυλή στην πρόσοψη τού σπιτιού, κλειστή από χαμηλό μαντρότοιχο. Δίπλα
του, το "μεσιακό" κτίσμα (με κοινή μεσοτοιχία) είχε κλειστή αυλή, με
λίθινη υψηλή μάντρα (αυλότοιχο). Πιθανώς να ήταν η επέκταση τού σπιτιού (Α), το
"παράσπιτο" δηλαδή και να χρησίμευε σαν σταυλικός χώρος και για
διάφορες αγροτικές δουλειές. Συνηθίζονταν άλλωστε οι κλειστές αυλές σε
σταυλικούς χώρους ακόμα και για το
άρμεγμα τής κατσίκας. Η ενιαία στέγη ενισχύει μάλλον αυτήν την άποψη.
Οι
εξωτερικές όψεις των δύο κτισμάτων είναι λιτές, χωρίς καμμιά διακοσμητική
διάθεση. Τα μόνα στοιχεία που τονίζουν την όψη είναι τα "μαντώματα"
("μαντωσιές") των ανοιγμάτων.
Νοτιοανατολικά τού ναού τής Αγίας Τριάδος και κοντά στο σπίτι (Α) σε μια αρκετά φαρδιά "πεζούλα" σώζονται δύο πολήμνια από άσπρες πέτρες για τη συλλογή τού μούστου. Προφανώς υπήρχε εκεί πατητήρι. |
|||||||||||||
7.2.3. ΒΑΛΕΟΝΤΑΤΕΣ: Η ΓΕΙΤΟΝΙΑ ΤΗΣ ΔΥΤΙΚΗΣ ΟΧΘΗΣ Τα περισσότερα σπίτια βρίσκονται στη δυτική όχθη τού ρέματος και αναρριχώνται στην πλαγιά τού βουνού αμφιθεατρικά. Eκεί νοτιοδυτικότερα παρατηρούμε μονάδες σπιτιών σε πρωτόλεια μορφή, πολύ μικρού μεγέθους, συνωστισμένα το ένα δίπλα στο άλλο, και άλλα ερειπωμένα γύρω, που ακολουθούσαν παρόμοια διάταξη και μορφή. Μαρτυρούν το γεγονός τής συνέχειας τού "οσπιτίου" τών βυζαντινών, που διατήρησε βασικά την τοπική του αρχιτεκτονική έκφραση. Είναι το "ισόγειο (οσπίτιον χαμόγεον ή χαμαίγεον). και το ανωκάτωγο (δίπατον ή ανωγοκάτωγον ή ανωγεωκάτωγον ή άνω κάτω) μονόχωρο κυβόσχημο και με μικρή αύξηση, συνηθέστερα στην κατά μέτωπο τοποθέτηση τού κτίσματος.
Φαίνεται πως αυτές οι μικρές μονάδες αποτέλεσαν τον πρώτο
πυρήνα τού οικισμού. Είναι σπίτια που μας παραπέμπουν βαθύτερα στο χρόνο.
Σχημάτισαν ένα πυκνοδομημένο ιστό που απλώθηκε σύμφωνα με τις κλίσεις τής
πλαγιάς και επικοινωνούσε με ένα δαιδαλώδες δίκτυο από μικρά δρομάκια,
μονοπάτια και σκάλες. Η γύρω περιοχή έχει καταληφθεί από διαμορφωμένες πεζούλες
καλλιεργειών. Η
λιτή ασκητική καθαρότητα τού ορθογωνισμένου όγκου προσδίδει στις μορφές τον
δυναμισμό τής μονολιθικότητας και στον οικισμό μια ανάλογη αίσθηση. Τα
σπίτια αυτά είναι μονόχωρα ισόγεια ή ανωκάτωγα. Ο όροφος (το σπίτι) ήταν
προσπελάσιμος μόνον από εξωτερική πέτρινη σκάλα και κατέληγε σε πλατύσκαλο στο
κέντρο τής μιας από τις πιο μακριές πλευρές του. Εκεί είναι και η πόρτα τού ανωγείου.
Το κατώϊ ("βαρκαρέτζο"), χρησίμευε σαν αποθήκη, για τη
σταύλιση, για την παρασκευή κρασιού κ.λ.π. Τα ανοίγματα είναι περιορισμένα σε
αριθμό και σε μέγεθος με ένα παράθυρο κοντά στην πόρτα. Είναι πέτρινα
κτίσματα με ανεπίχριστες εξωτερικά λιθοδομές και με επιπεδόστεγες καλύψεις (νησιωτικό δώμα). Ο
όγκος τού σπιτιού, ορθογωνισμένος (κυβικός ή επιμήκης) πρόβαλε προς τον δρόμο
κυρίως τη μεγαλύτερη πλευρά του, λόγω τής ομαλότερης κατάστασης τού
εδάφους σ΄εκείνα τα σημεία. Άλλα
σπίτια τού οικισμού (μερικά πλατυμέτωπα) διατάσσονται με τη στενή τους πλευρά
μπροστά και εγκάρσια στο επικλινές τού εδάφους. Ελλείψει αυλικών
χώρων, ή και λόγω στενότητας αυτών, η κύρια αγροτική ενασχόληση των κατοίκων
εξυπηρετούνταν από τη διώροφη διάταξη τού κτίσματος, με το κατώϊ.
|
Η όλη
μορφή ήταν λιτή και ασκητική. Κοσμούνταν μόνον από μια σειρά προεξέχουσες
σχιστόπλακες τα "ακρόδομα", σε όλο το μήκος των όψεων, κάτω ακριβώς από το χείλος τού δώματος
(το σαμάρι), Συγκρατούσε την έντονη ροή τού νερού κατά τις βροχοπτώσεις και προστάτευε
τις λιθοδομές. Υπάρχουν όμως και τα σπίτια με στέγες που ανάγονται ίσως στον
19ο αιώνα ή τότε αντικατέστησαν οι ένοικοι τα παλιά δώματα με στέγες.
Εγκαταλείφθηκαν
σταδιακά από το 1880 και μετά. Αρκετά απ΄αυτά όμως, όπως προαναφέραμε,
αποκαταστάθηκαν διατηρώντας τη βασική
τους μορφή.
Ανάμεσα
στα σωζόμενα σπίτια διακρίνεται ένα πλατυμέτωπο αποκαταστημένο κτίσμα μεγάλου
μεγέθους σε σχηματισμό "γάμμα".
Το ιδιαίτερο χαρακτηριστικό του είναι τα πολλά και μεγάλα ανοίγματα στην πρόσοψή του. Δίπλα του, και σε επαφή με αυτό, σώζεται σε καλή κατάσταση ένα στενομέτωπο κτίσμα τονισμένου ύψους, με τα δύο συμμετρικά ανοίγματα στον όροφο, που θυμίζει αρκετά τα "πυργόσπιτα".
Πάνω και κάτω από τα ανοίγματα τοποθετήθηκαν ξύλινα πρέκια (χατήλια) από ελίτικα ξύλα, καστανιά ή κυπαρίσσι. Στην εξωτερική όψη περιβάλλονταν ολόγυρα από ξύλινα "μαντώματα" και τα "κανάτια" τοποθετούνταν κατά τρόπο ώστε να αναδιπλώνονται εξωτερικά, μέσα στο πάχος των τοίχων. Τα "τζαμιλίκια" διπλώνανε εσωτερικά, στο πάχος επίσης των τοίχων. Δίπλα σε παράθυρο τού ορόφου βρίσκονται πακτωμένες μέσα στην λιθοδομή δύο πέτρινες πλάκες, το "σκαλούνι" γιά τον βασιλικό.
Οι λιθοδομές ανεπίχριστες εξωτερικά παρουσιάζουν κι εδώ, όπως στη γειτονιά τής ανατολικής όχθης, μια ποικιλία χρωμάτων, όπου κυριαρχεί οπτικά η άσπρη πέτρα τού ποταμιού, οι γκρίζες και οι κίτρινες τής ώχρας. Διαπιστώνεται σε κάποια σπίτια μια μεθοδευμένη τάση χρήσης τής άσπρης πέτρας που τοποθετείται στο ψηλότερο τμήμα των τοίχων, ώστε να διακοσμεί τις όψεις και να είναι φυσικά ορατή.
Σε
σχέση με την άσπρη πέτρα, αναφέρουμε και την ύπαρξη τού αρχαίου λατομείου στην
περιοχή. Από προφορικές μαρτυρίες των
κατοίκων διαπιστώθηκαν αρχαία κατάλοιπα εκεί, ενώ το λατομείο των Μανωλατών
λέγεται οτι τροφοδότησε με μάρμαρο τον ναό τής Ηρας στη Σάμο. Σχετικά δε με το
κολοσσικό κούρο τής Σάμου, τού 580 π.Χ., τού οποίου ο κορμός ανακαλύφθηκε το
1980 και η κεφαλή το 1984, κάνει αναφορά η Αρχαιολόγος Α.
Βιγλάκη-Σοφιανού, σε ομιλία της το 2012:
"Ενας γίγαντας σμιλευμένος σε μάρμαρο από το αρχαίο λατομείο τού
ορεινού χωριού Μανωλάτες, αντίκρυσε ξανά, ύστερα από 2500 χιλιάδες χρόνια,
το λαμπρό φώς τής Ιωνίας"(58).
Ως προς τον
τρόπο δόμησης, ο πιο συχνός τύπος λιθοδομής σχηματίζονταν από δύο μέτωπα,
εσωτερικό και εξωτερικό, τα οποία ενώνονταν ενδιάμεσα με λάσπη και
μικρότερες πέτρες. Ιδιαίτερη προσοχή δίνονταν στις γωνίες των κτισμάτων, στα
αγκωνάρια, ακόμα και στις πιό ευτελείς κατασκευές, όπου φροντίζανε να δένουν
τις γωνίες με μεγάλες καλής ποιότητας πέτρες. Οι γωνιόλιθοι αυτοί λαξευμένοι ή
όχι είχαν πολύ σημαντικό ρόλο στην κατανομή των φορτίων και στην
αντοχή τού κτίσματος.
Τα υλικά που
χρησιμοποιούνταν για τα συνδετικά κονιάματα ήταν η άμμος και ο ασβέστης
ή "κουρασάνι" (ασβεστοκονίαμα με τριμμένο κεραμίδι). Επιχρίσματα
χρησιμοποιούσαν μόνο στο εσωτερικό της τοιχοποιίας από ασβέστη αναμεμειγμένο με
τρίχες από γίδα ή άχυρο, για μεγαλύτερη πρόσφυση και αντοχή.
Στις Βαλεοντάτες σώζονται επίσης τα ερείπια ενός νερόμυλου στη θέση "Πλατανάκια", στην απαρχή τού μονοπατιού (ντουσιμέ) που οδηγούσε στις "Μαργαρίτες" και στις "Μανωλάτες". Ηταν ο νερόμυλος τού Μώρου για την άλεση σιτηρών που καλλιεργούνταν στην περιοχή. Δίπλα του λειτουργούσε και "ταβέρνα".
Στις "Βαλεοντάτες" μετά την ίδρυση τής ΕΟΣ διαμορφώθηκε σημείο παραλαβής σταφυλιών (σταφυλοδόχος) (61).
Αποκατάσταση σπιτιού & Δρομάκι (ω)
|
![]() |
| Πλατυμέτωπο δωματερό & "πυργόσπιτο" (ω) |
Το ιδιαίτερο χαρακτηριστικό του είναι τα πολλά και μεγάλα ανοίγματα στην πρόσοψή του. Δίπλα του, και σε επαφή με αυτό, σώζεται σε καλή κατάσταση ένα στενομέτωπο κτίσμα τονισμένου ύψους, με τα δύο συμμετρικά ανοίγματα στον όροφο, που θυμίζει αρκετά τα "πυργόσπιτα".
Πάνω και κάτω από τα ανοίγματα τοποθετήθηκαν ξύλινα πρέκια (χατήλια) από ελίτικα ξύλα, καστανιά ή κυπαρίσσι. Στην εξωτερική όψη περιβάλλονταν ολόγυρα από ξύλινα "μαντώματα" και τα "κανάτια" τοποθετούνταν κατά τρόπο ώστε να αναδιπλώνονται εξωτερικά, μέσα στο πάχος των τοίχων. Τα "τζαμιλίκια" διπλώνανε εσωτερικά, στο πάχος επίσης των τοίχων. Δίπλα σε παράθυρο τού ορόφου βρίσκονται πακτωμένες μέσα στην λιθοδομή δύο πέτρινες πλάκες, το "σκαλούνι" γιά τον βασιλικό.
"Σκαλούνι-βασιλικόπετρα"Φ.2018-Ι.Π.
|
"Σκαλούνι-βασιλικόπετρα"Φ.2018
|
Οι λιθοδομές ανεπίχριστες εξωτερικά παρουσιάζουν κι εδώ, όπως στη γειτονιά τής ανατολικής όχθης, μια ποικιλία χρωμάτων, όπου κυριαρχεί οπτικά η άσπρη πέτρα τού ποταμιού, οι γκρίζες και οι κίτρινες τής ώχρας. Διαπιστώνεται σε κάποια σπίτια μια μεθοδευμένη τάση χρήσης τής άσπρης πέτρας που τοποθετείται στο ψηλότερο τμήμα των τοίχων, ώστε να διακοσμεί τις όψεις και να είναι φυσικά ορατή.
Λεπτομέρεια τοίχου-ακρογωνιάς
|
Ορισμένες
λιθοδομές κάποιων ανακαινισμένων σπιτιών φαίνονται να ήταν εξ αρχής
αρκετά επιμελημένες. Παρατηρείται και διαφοροποίηση στον τρόπο κατασκευής, στη
μέθοδο και στα μεγέθη τής πέτρας σε σχέση με άλλα σπίτια. Αλλού χρησιμοποιήθηκαν μικρές λαξευμένες,
μακρόστενες πέτρες, με παρεμβολή λευκών κυβικών ή ορθογωνισμένων λίθων σε
έντονη χρωματική αντίθεση. Αλλού χρησιμοποιήθηκαν λεπτές μακρόστενες και μεγαλύτερες σε
διαστάσεις και σε συνδιασμό με λευκές στο επάνω μέρος τών τοίχων.
Υπάρχουν και κατασκευές με ισόδομους λίθους, αλλά και με πιο στργγυλεμένες. Στις πιό
επιμελημένες κατασκευές έχουμε και καλοφτιαγμένα λαξευμένα
αγκωνάρια.
Οι κατασκευές αυτού τού τύπου προϋποθέτανε τη συμβολή ειδικευμένων
μαστόρων. Δεν έχουμε προς το παρόν πολύ συγκεκριμένες πληροφορίες για τη
δραστηριότητα των πετροπελεκητάδων στην περιοχή. Γενικότερα για τη Σάμο,
σύμφωνα με την απογραφή του 1828, αναφέρονται και 11 εσνάφια
Γνωρίζουμε (από προφορικές μαρτυρίες) οτι προς το τέλος τού 19ου-αρχές 20ου
αιώνα, δούλεψαν στην περιοχή Μανωλατών Καρπάθιοι μάστορες,
γνωστοί ως Γιουτλάκιδες (Γιουτλάκης), εγκατεστημένοι στο χωριό "Αρβανίτες"
τής Σάμου. Στις λιθοδομές τους χρησιμοποιούν διάφορα μεγέθη πέτρας και
ενδιάμεσα σειρές από μικρότερες. (59) Επίσης, προς το β΄μισό περίπου τού 19ου αιώνα, ο
μάστορας Κιρκιτζιώτης (από το άλλοτε ελληνικό χωριό Κιρκιντζέ ή Σιριντζέ τής Μ.Ασίας) ο
οποίος κατοικούσε πιθανότατα στο "Πάνω Βαθύ" τής Σάμου.
Αργότερα οι Γκιουζέληδες (επίσης από την Μ.Ασία) χτίσανε το 1962 το σπίτι
Νίνου στις Μανωλάτες. Οι Γκιουζέληδες και οι Κιρκιτζιώτιδες (απόγονοι) χτίσανε
το 1975 το σπίτι τής Αγάπης Αγγελή στις Μανωλάτες. ΟΙ Γιαβάσηδες (πρόγονοι
Νικήτα Κυπαρίσση) ήταν κι αυτοί λιθοδόμοι από τη Μ.Ασία.
Φαίνεται πως
στη Σάμο τού 19ου τουλάχιστον αιώνα υπήρχαν ξακουστοί πετροπελεκητάδες και
χτίστες: "Το 1862 κατά τις ανταλλαγές πληθυσμών μεταξύ Ελληνικού
κράτους και Οθωμανικής Αυτοκρατορίας φεύγουν εναπομείναντες Τούρκοι από την
Εύβοια και αντίστοιχα εκπατρίζονται περίπου 200 οικογένειες από την Σάμο για
την Εύβοια, κάποιες εξ αυτών, περίπου 30, εγκαθίστανται στα Ψαχνά...στο
Σαμιώτικο μαχαλά ή στα Σαμέϊκα. Μεταξύ αυτών ήταν και μερικές ξακουστές
οικογένειες πετροπελεκιτάδων και χτιστών της εποχής...Εχτισαν δε
αφιλοκερδώς στα Ψαχνά (στα 1890-1900) τον μεγάλο, βυζαντινού ρυθμού
τρισυπόστατο ναό τής Μεταμορφώσεως τού Σωτήρος, πανομοιότυπος με άλλους δύο
ναούς στην Σάμο" (60).
![]() | |
|
Οι ξερολιθικές
λιθοδομές αφθονούν εδώ όπως και σε όλο τον οικισμό των Βαλεοντατών και στην
γύρω ύπαιθρο σε αυλότοιχους, σε μάντρες καλλιεργημένων κήπων, σε όρια
ιδιοκτησιών, σε αντιστηρίξεις δρομίσκων τού οικισμού, σε πλατύσκαλα των
"ανωγείων" των σπιτιών και σε σκάλες ανόδου και σε πολλές άλλες
περιπτώσεις. Τέλος, μεγάλη χρήση έγινε σε τοίχους αντιστήριξης για τη
διαμόρφωση "πεζουλιών" στα γύρω υψώματα τού όρους "Καρβούνη",
για την καλλιέργεια των αμπελιών και των ελαιοδέντρων που ήταν βασική
ενασχόληση των κατοίκων τής περιοχής. Άπειρα δε "σκαλούνια"
(πατήματα από πλατιές πέτρες) διευκόλυναν την πρόσβαση απο το ένα επίπεδο στο
άλλο τών πεζουλιών.

| Ο νερόμυλος με την ¨ταβέρνα" Φ.2018 |
Ο νερόμυλος με την ¨ταβέρνα" Φ.2018
|
Στις Βαλεοντάτες σώζονται επίσης τα ερείπια ενός νερόμυλου στη θέση "Πλατανάκια", στην απαρχή τού μονοπατιού (ντουσιμέ) που οδηγούσε στις "Μαργαρίτες" και στις "Μανωλάτες". Ηταν ο νερόμυλος τού Μώρου για την άλεση σιτηρών που καλλιεργούνταν στην περιοχή. Δίπλα του λειτουργούσε και "ταβέρνα".
Στις "Βαλεοντάτες" μετά την ίδρυση τής ΕΟΣ διαμορφώθηκε σημείο παραλαβής σταφυλιών (σταφυλοδόχος) (61).
|
|
8.1. Ο
ΝΑΟΣ ΤΟΥ ΑΓ. ΓΕΩΡΓΙΟΥ ΜΑΡΓΑΡΙΤΩΝ
Στη βόρεια
πλευρά του ο κύριος ναός επικοινωνούσε παλιότερα μέσω χαμηλού ανοίγματος (το
οποίο στην πορεία "σφραγίστηκε") με ορθογώνιο κτίσμα, ασκεπές
σήμερα, πλάτους 3,80μ.και μήκους περιπου 5,35 μ. Οι τοίχοι σώζονται στο
μεγαλύτερο μέρος τους και φαίνεται από τις "ακλείδωτες" λιθοδομές ότι
χτίστηκε ανεξάρτητα. Στην ανατολική πλευρά αυτού τού καταβεβλημένου
κτίσματος υπάρχει (το 1996) μια επιμελημένη όψη από λαξευτούς ορθογωνισμένους
λίθους και προσεγμένες ακρογωνιές. Ο τοίχος είναι διακοσμημένος με
"ψευτοπεσσό" από κεραμόπλινθους. Πρόκειται ίσως γιά το παλιό
παρεκκλήσιο τού "Αγίου Ελευθερίου". ΓΙΑ ΤΟΝ ΑΓΙΟ ΕΛΕΥΘΕΡΙΟ
Ο Αγιος
αυτός ετιμάτο σαν προστάτης κάθε έννοιας ελευθερίας (και των φυλακισμένων), αλλά
ιδιαιτέρως των εγκύων γυναικών, καθώς πιστεύεται ότι δίνει καλή λευτεριά. "Γιά να τιμήσουν τον Άγιο Ελευθέριο οι έγκυες
δεν εργάζονταν κατά την εορτή του (15 Δεκεμβρίου) προκειμένου να έχουν
την εύνοιά του, να καλογεννήσουν. Όταν προσκαλούνταν η μαμή, έφερνε μαζί της
και την εικόνα του Αγίου Ελευθερίου, την οποία τοποθετούσε πλάι στην επίτοκο, ή
την επέθετε επί της κοιλιάς της δυστοκούσης, γιατί θεωρούσε την ενέργεια αυτή
ως τελεσφόρο ωκυτόκιο. Επίσης, επί δυστοκίας έψαλλαν παράκληση στον Άγιο και
έταζαν το τεχθησόμενο. Οι περισσότεροι προστάτες Άγιοι, ως
Άγιοι ευτοκίας, υπομιμνήσκονταν από παρετυμολογία. Έτσι και το όνομα του Αγίου
Ελευθερίου συνδεόταν με το ρήμα "ελευθερώνομαι» που χρησιμοποιούνταν και
με την σημασία του τίκτω, γεννώ. Ο Άγιος Ελευθέριος παρείχε στην επίτοκο «καλή
λευτεριά» και με το αίσιο τέλος του τοκετού την ελευθέρωνε" (66).
Στην
περιοχή που εξετάζουμε φαίνεται πως ετιμάτο ιδιαίτερα από τους
Μικρασιάτες πρόσφυγες με
παρεκκλήσια, προγενέστερα των ενοριακών ναών.
Εκτός
τού ερειπωμένου ναού στις Μαργαρίτες, άλλες εκκλησίες τού Αγίου
Ελευθερίου συναντάμε στις Μανωλάτες στον ενοριακό ναό τής
Ζωοδόχου Πηγής (η δεύτερη υπόστασή του) και έτερο εκεί καταβεβλημένο ναό, τού
οποίου σώζονται μόνον τα θεμέλια τού Ιερού Βήματος. Στους Βουρλιώτες
(οικισμό που ιδρύθηκε από χριστιανούς τών "Βουρλών" και
τροφοδότησε με πληθυσμό τούς Εξη Μαχαλάδες) υπάρχει ναός τού Αγίου Ελευθερίου, στους Σταυρινήδες επίσης (ανακαινισμένος με τέμπλο τού 1827) και στους Νενέδες (Αμπελος), παραπλεύρως τού ενοριακού ναού (67).
Η
λατρεία τού Αγίου Ελευθερίου ήταν διαδομένη στην Μυτιλήνη,
νησί από το οποίο μετέφεραν οι Τούρκοι τούς πρώτους άποίκους στη Σάμο,
κατά το β΄μισό τού 16ου αιώνα και ίδρυσαν αυτοί το μεγαλοχώρι "Μυτιληνοί". Εδώ ο Ιωσήφ Γεωργειρήνης το 1666 μνημονεύει δύο ναούς, ο δε Ιωάννης Πάπαλης
το 1964 αναφέρει ως ένα από τους αρχαίους ναούς τον ενοριακό ναό τής "Γεννήσεως
τού Χριστού - Αγίου Ελευθερίου". Σχετικά με τα έθιμα τού τοκετού αναφέρουμε: "Γύρω λοιπόν από την
ετοιμόγεννη την ώρα τού τοκετού, επικαλούνταν τον Αγιο Ελευθέριο γιά να την ελευθερώσει. Σε
δύσκολο τοκετό, κοντά στο εικόνισμα τού Αγίου τοποθετούσαν ένα ποτήρι γεμάτο
νερό στο οποίο έβαζαν το "χατζηλίκι", ένα φυτό φερμένο από τους
Αγίους Τόπους. Οι ρίζες τού φυτού άνοιγαν σαν χέρια και το ονόμαζαν "χέρι
τής Παναγίας" γιά να καταπραϋνθούν οι πόνοι"(68). "Από την εποχή της
Οθωμανικής κυριαρχίας οι μητέρες θεωρούσαν θεότρομους επίσης αγίους κυρίως τον
Άγιο Συμεών, τον Άγιο Ιωάννη τον Πρόδρομο, τον Άγιο Τρύφωνα κ.ά." (69).
Γενικότερα στη Σάμο, φαίνεται πως οι εγκυμονούσες τιμούσαν επίσης τον Άγιο Συμεών και απείχαν
από κάθε εργασία την ημέρα τής γιορτής το στις 3
Φεβρουαρίου "ίνα μή τό τεχθησόμενον ή
σημειωμένον, δήλον ότι πηρόν", για να μην αποτυπωθεί στο πρόσωπο ή στο
υπόλοιπο σώμα οποιοδήποτε σημάδι ή σχήμα που θα σχετίζονταν με την εργασία τής
εγκυμονούσας. Σχετικά με την μαία, που ηταν πολύ σημαντικό πρόσωπο γιά τον τοκετό, ας αναφέρουμε
ότι στα χωριά τής Σάμου την αποκαλούσαν "ψαμένη", ή καλύτερα
"Κυρά Ψαμένη".Το όνομά της προέρχονταν από την ευχή: "και
συγχώρησον αυτή (τή τεκούση) και παντί τώ οίκω ώ εγεννήθη το παιδίον, και τοίς
αψαμένοις αυτής και τοίς ενθάδε ευρισκομένοις πάσι"(70).
Η
παλιότερη περιγραφή γιά τις συνήθειες σχετικά με τον τοκετό κ.λ.π. που
διαθέτουμε είναι τού 1666 τού Ι. Γεωργειρήνη. Συνοπτικά αναφέρουμε:
Kατά τον τοκετό εκαλείτο ¨στο σπίτι ο ιερέας. Απαγορευόταν δε να φύγει κάποιος
από τούς παρισταμένους προτού αναγνώσει ο ιερέας τις αναγκαίες ευχές.
Θεωρούνταν ύβρις και μεγάλο κακό γιά την ευημερία τής μητέρας το να μην
αποδοθούν στον Θεό ευχαριστίες και δεήσεις. Γιά ιδιαίτερες περιπτώσεις, όταν το
βάπτισμα γίνονταν στο σπίτι, χρησιμοποιούσαν μόνο νερό, λάδι και μιά αναμένη λαμπάδα μπροστά στο
εικόνισμα τής Παναγίας ή κάποιου άλλου αγίου, που διέθετε η οικογένεια. Μας περιγράφει δε στη συνέχεια αναλυτικά το μυστήριο μιας κανονικής βάπτισης
στην εκκλησία (71).
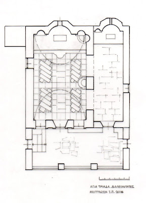
8.1.1. ΑΡΧΙΤΕΚΤΟΝΙΚΗ
ΠΕΡΙΓΡΑΦΗ ΤΟΥ ΝΑΟΥ ΤΟΥ ΑΓΙΟΥ ΓΕΩΡΓΙΟΥ
Ο προνάρθηκας
τού ναού, στη δυτική πλευρά, έχει εξωτερικό μήκος 4,02 μ..και εξωτερικό πλάτος
5,70 μ. (όσο και τού κυρίως ναού). Το εσωτερικό μήκος είναι 3,40 μ..και το
πλάτος είναι 4,40 μ. Οι τελικές λοιπόν
διαστάσεις (εκτός τού προεξέχοντος ιερού) είναι 15,52Χ5,70 μ..
Ο χώρος τού
Ιερού βήματος έχει μήκος 1,67 μ.. Εκεί είναι τοποθετημένο το τέμπλο τού ναού.
Στη θέση αυτή, εξωτερικά τού τέμπλου, στον βόρειο τοίχο, βρίσκεται σφραγισμένο πέρασμα προς το παρεκκλήσιο τού Αγίου Ελευθερίου (;) και
πλάτους 0,80 μ. Δίνει την εντύπωση μιας χαμηλής ημικυκλικής καμάρας που
σφραγίστηκε στην πορεία κατά το ήμισυ τού ανοίγματός της.
Η κόγχη τού
ιερού είναι ημικυκλικής κάτοψης, με άνοιγμα εσωτερικά 2,60 μ.και ακτίνα
1,25 μ., ύψους δε 2,89 μ. από το δάπεδο ως το "κλειδί" τού θόλου της
και 2,02 μ. ως την "γένεση" τής καμάρας. Δεξιά κι αριστερά τού ιερού
υπάρχουν δύο μικρές τοξωτές θυρίδες πλάτους 0,60 μ. και 0,68 μ., βάθους 0,40 μ.
και ύψους 0,77 μ. και 0,81 μ. αντίστοιχα.
Γιά τον Αγιο
Γεώργιο συμπερασματικά αναφέρουμε:
Ο ναός χτίστηκε θολοειδής, κατά τα παλαιότερα πρότυπα τής 1ης περιόδου,
εντυπωσιακής ομοιότητας με τον θόλο τής Αγίας Τριάδος Βαλεοντάτων τού 1716, όπως
θα δούμε παρακάτω. Ο θόλος είναι υψηλός, αντίθετα από την επικρατούσα τάση να γίνεται χαμηλό το κτίσμα προκειμένου να κατασκευαστεί θολωτός ο ναός. Δε φέρει
εγκάρσια σφενδόνια, ούτε πλευρικά τόξα (αντί σφενδονίων), ούτε αύξηση τού πάχους των τοίχων (οικοδομικές τάσεις τής περιόδου αυτής για την εξασφάλιση τής στατικής επάρκειας τού κτίσματος).
Υιοθέτησε όμως
και στοιχεία τής 2ης περιόδου όπως τις λιτές λιθοδομές, τη στέγη, την
μαρμάρινη επικάλυψη τού δαπέδου, πανομοιότυπα επίσης με αυτά τής Αγίας Τριάδος,
καθώς και τον προνάρθηκα που προστέθηκε αργότερα, όπως άλλωστε συνέβη με το
εξωνάρθηκα τής Αγ.Τριάδος.
Τα θυρώματα που
πλαισιώνουν αποκλειστικά την πόρτα είναι απλούστατα, ενώ τής Αγίας Τριάδος πιο
περίτεχνα, με ανακουφιστικό τόξο πάνω από το υπέρθυρο. Στην δε εσωτερική όψη
των παραθύρων και τής πόρτας τής Αγ.Τριάδος διαμορφώνονται "τύμπανα".
Είναι ένα χαρακτηριστικό τού 18ου αιώνα που ενίοτε συναντάται.
Η
ανάγλυφη επιγραφή φέρει χρονολογία 1803. "Ο φτιάσας δι΄εξόδων κόνισμα, ελοξομίσθη ο
παρών...Γεώργιος και έξοδα τών Χριστιανών Κάτοικος Μαργαρίτιδες 1803 Αυγούστου
τ".
Πρόκειται
για εικόνα (εικόνισμα- απεικόνισμα- κόνισμα), τής οποίας τα βασικά μάλλον
έξοδα ανέλαβε κάποιος κάτοικος των Μαργαρίτιδων και συνέβαλαν και οι χριστιανοί
τού χωριού. (Ισως και γιά κάποια άλλη ακόμα εργασία, αδιευκρίνιστη).
Επρόκειτο γιά
προσκυνητάρι δίπλα ίσως στον ναό; Συνηθίζεται και σήμερα γιά την
προστασία τού κυρίως ναού από κλοπές κ.λ.π. Θεωρούμε πιθανότερη την δεύτερη
εκδοχή.
Τα
κονίσματα από παλιά ήταν ιερά κατασκευάσματα αφιερωμένα σε αγίους που συχνά
περιέβαλαν και προστάτευαν τα χωριά ( σήμερα επιβιώνουν και σαν ενθύμηση
δυσάρεστων γεγονότων). ή κτίζονταν και μεγαλύτερα σαν προσκυνήματα δίπλα
σε ναούς. Ο κτήτορας έδινε κατά την τελετή των εγκαινίων το όνομα τού προστάτη
αγίου που επιθυμούσε. "Παλαιότερα ονομάζονταν Εικονίσματα, αλλά για
συντομία έκοψαν το ει και έμεινε το «κονίσματα» και πράγματι είχαν δίκιο, διότι
με την λέξη εικόνισμα απεικονιζόταν μόνο η εικόνα και όχι το όλο κατασκεύασμα.
Τα Κονίσματα στα παλιά τα χρόνια τα έκτιζαν με πέτρες και ασβεστοκονίαμα Άκομψα
και ογκώδη. Το σχήμα τους ήταν τετραγωνική πυραμίδα, η πλευρά της βάσης τους
ήταν 2 με 3 μέτρα και το ύψος της ήταν 4 με 5 μέτρα. .... υπήρχε μια πορτίτσα
που μέσα εκεί τοποθετούσαν το καντήλι και η εικόνα του Αγίου στον οποίο ήταν
αφιερωμένο το κόνισμα. Η πόρτα ήταν με τζάμι ..Στην κορυφή τοποθετούνταν ο
διπλός σταυρός (76)
| ||||||||||||||||||||||||||||||||||||||||||||||||||||||||||||||||||||||||||||||||||||||||||||
|
|||||||||||||||||||||||||||||||||||||||












































